Maison neuve à
Le Poinçonnet (36330) Référence : KG2430194_2

Prix du projet : Maison avec Terrain

prix 201 500 €

  • 4 pièces
  • 3 chambres
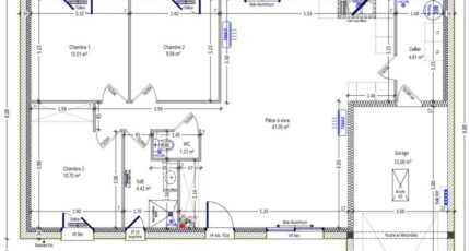
  • Surface maison 85 m2

Projet de construction Maison de 4 pièces (85 m²) au Poinçonnet
EMPLACEMENT PRIVILÉGIÉ - MAISON 4 PIÈCES NEUVE
À 6 km de Châteauroux, découvrez cette maison de 4 pièces de plain-pied de 85 m² bénéficiant d'un emplacement d'exception dans Le Poinçonnet (36330). Son intérieur compte trois chambres, une cuisine et une salle de bains.
Le terrain de la propriété s'étend sur 790 m².
La maison est neuve.
Cette propriété est située dans un quartier convoité. L'École Primaire François Rabelais, l'École Élémentaire Jacques Prévert et l'École Maternelle la Petite Fadette sont implantées à moins de 10 minutes à pied. Côté transports, on trouve la gare Châteauroux à moins de 10 minutes en voiture. L'autoroute A20 et la nationale N151 sont accessibles à moins de 8 km. Il y a un tennis, deux boulangeries, trois commerces, un bureau de poste, une épicerie et deux boucheries-charcuteries à quelques minutes du bien.
Son prix de vente est de 201 500 €.
Contactez notre agence (GRIMAUD Kevin : *6-22-14-89-67) pour obtenir de plus amples informations sur la maison ou sur les démarches à suivre.

Mentions légales

Terrain proposé par un partenaire foncier selon disponibilités et autorisation de publicité au prix de 63 000 €. Hors droit d'enregistrement et frais de notaire. Terrain + Maison proposés au prix de 201 500 € (Hors branchements et raccordements, papiers peints, peintures, revêtement de sol dans les chambres. Tarif modifiable sans préavis). Etiquette énergie : A. Différents modèles disponibles pour ce terrain. Assurances et garanties du constructeur (RC professionnelle, décennale, dommage ouvrage, garantie de remboursement de l'acompte, livraison à prix et délai convenu) : https://www.maisons-brunopetit.fr/mentions-legales/.

Contactez l'agence de Châteauroux

02 54 22 66 24

    * Champs obligatoires

    Vos informations sont traitées par HEXAOM et transmises à un conseiller commercial qui vous contactera afin de répondre à votre demande. Les plans et images présentés sur notre site sont la propriété d’HEXAOM et ne peuvent pas être reproduits sans son accord. Pour retrouver notre politique de protection des données personnelles et exercer vos droits conformément à la « loi informatique et liberté » cliquez-ici.