Maison neuve à
Le Subdray (18570) Référence : JL2320292_1

Prix du projet : Maison avec Terrain

prix 201 550 €

  • 5 pièces
  • 4 chambres
  • Surface maison 90 m2

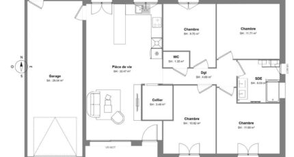
VENTE : maison F5 (90 m²) à Saint-Michel-de-Volangis
MAISON 5 PIÈCES NEUVE - PROCHE DE BOURGES
À vendre : à quelques kilomètres de Bourges, à Saint-Michel-de-Volangis (18390), nous vous proposons cette maison de 5 pièces de plain-pied de 90 m². Son intérieur compte quatre chambres, une cuisine et une salle de bains.
Le terrain du bien s'étend sur 1 000 m².
Cette maison est neuve.
Une école primaire est implantée dans le quartier. Niveau transports, il y a les gares Saint-Germain-du-Puy et Bourges à moins de 10 minutes en voiture. Il y a un accès à la nationale N142 à 10 km. On trouve une boucherie-charcuterie dans les environs.
Son prix de vente est de 201 550 €.
N'hésitez pas à prendre contact avec notre agence (LEBLANC Jonathan : 02-48-50-26-25) pour toute question sur la maison. Faites de vos projets immobiliers une réalité avec Maisons Bruno Petit MJB Bourges.

Mentions légales

Terrain proposé par un partenaire foncier selon disponibilités et autorisation de publicité au prix de 40 000 €. Hors droit d'enregistrement et frais de notaire. Maison proposée, avec un contrat de construction de maison individuelle, dans le cadre de la loi du 19/12/1990, au prix de 161 550 € (Hors branchements et raccordements, papiers peints, peintures, revêtement de sol dans les chambres, qui sont chiffrés dans les travaux qui restent à charge du client. Tarif modifiable sans préavis). Étiquette énergie : A. Différents modèles disponibles pour ce terrain. Assurances et garanties du constructeur comprises (RC professionnelle, décennale, dommage ouvrage).

Contactez l'agence de Bourges

02 48 50 26 25

    * Champs obligatoires

    Vos informations sont traitées par HEXAOM et transmises à un conseiller commercial qui vous contactera afin de répondre à votre demande. Les plans et images présentés sur notre site sont la propriété d’HEXAOM et ne peuvent pas être reproduits sans son accord. Pour retrouver notre politique de protection des données personnelles et exercer vos droits conformément à la « loi informatique et liberté » cliquez-ici.