Maison neuve à
Le Subdray (18570) Référence : SG2397203_1

Prix du projet : Maison avec Terrain

prix 170 900 €

  • 3 pièces
  • 2 chambres
  • Surface maison 70 m2

VENTE : maison F3 (70 m²) au Subdray
IDÉALEMENT SITUÉE - MAISON 3 PIÈCES NEUVE
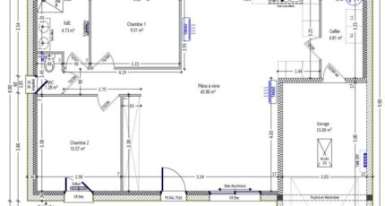
À vendre : à 10 km de Bourges, idéalement située dans Le Subdray (18570), nous vous proposons cette maison de 3 pièces de plain-pied de 70 m² et de 1 000 m² de terrain. Elle compte deux chambres, une cuisine et une salle de bains.
Cette maison est neuve.
Cette maison se trouve dans un secteur recherché. Une école primaire y est implantée et une structure d'accueil pour les enfants en bas âge. Niveau transports, il y a les gares Saint-Florent-sur-Cher, Lunery et Marmagne à moins de 10 minutes en voiture. L'autoroute A71 et la nationale N151 sont accessibles à moins de 5 km. On trouve un tennis à proximité.
Son prix de vente est de 170 900 €.
Contactez notre agence (GROGRELIN Sandra : *2-48-50-26-25) pour toute information sur la maison, sur les démarches à suivre ou sur les modalités de vente. Maisons Bruno Petit MJB Bourges est là pour vous accompagner dans tous vos projets immobiliers.

Mentions légales

Terrain proposé par un partenaire foncier selon disponibilités et autorisation de publicité au prix de 40 000 €. Hors droit d'enregistrement et frais de notaire. Terrain + Maison proposés au prix de 130 900 € (Hors branchements et raccordements, papiers peints, peintures, revêtement de sol dans les chambres. Tarif modifiable sans préavis). Etiquette énergie : A. Différents modèles disponibles pour ce terrain. Assurances et garanties du constructeur (RC professionnelle, décennale, dommage ouvrage, garantie de remboursement de l'acompte, livraison à prix et délai convenu) : https://www.maisons-brunopetit.fr/mentions-legales/.

Contactez l'agence de Bourges

02 48 50 26 25

    * Champs obligatoires

    Vos informations sont traitées par HEXAOM et transmises à un conseiller commercial qui vous contactera afin de répondre à votre demande. Les plans et images présentés sur notre site sont la propriété d’HEXAOM et ne peuvent pas être reproduits sans son accord. Pour retrouver notre politique de protection des données personnelles et exercer vos droits conformément à la « loi informatique et liberté » cliquez-ici.