Maison neuve à
Léré (18240) Référence : JL2305500_1

Prix du projet : Maison avec Terrain

prix 221 900 €

  • 4 pièces
  • 3 chambres
  • Surface maison 120 m2

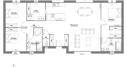
Léré : maison de 3 pièces (120 m²) à vendre
IDÉALEMENT SITUÉE - MAISON 3 PIÈCES NEUVE
En vente : nous vous présentons, idéalement située dans Léré (18240), cette maison de 3 pièces de plain-pied de 120 m² et de 1 200 m² de terrain. Elle offre trois chambres, une cuisine et deux salles de bains.
La maison est neuve.
Cette maison se situe dans un quartier attractif. On trouve l'École Primaire Groupe Camille Boistard à moins de 10 minutes à pied. Côté transports en commun, il y a la gare Cosne-Cours-sur-Loire à moins de 10 minutes en voiture. L'autoroute A77 est accessible à 7 km. On trouve un tennis et un bureau de poste à quelques minutes à peine.
Son prix de vente est de 221 900 €.
Prenez contact avec Jonathan LEBLANC (tél : 02-48-50-26-25) pour toute question sur la propriété, sur les démarches à suivre ou sur les modalités de vente. Maisons Bruno Petit MJB Bourges vous accompagne à toutes les étapes de votre projet et dans tous vos projets immobiliers.

Mentions légales

Terrain proposé par un partenaire foncier selon disponibilités et autorisation de publicité au prix de 35 000 €. Hors droit d'enregistrement et frais de notaire. Terrain + Maison proposés au prix de 186 900 € (Hors branchements et raccordements, papiers peints, peintures, revêtement de sol dans les chambres. Tarif modifiable sans préavis). Etiquette énergie : A. Différents modèles disponibles pour ce terrain. Assurances et garanties du constructeur (RC professionnelle, décennale, dommage ouvrage, garantie de remboursement de l'acompte, livraison à prix et délai convenu) : https://www.maisons-brunopetit.fr/mentions-legales/.

Contactez l'agence de Bourges

02 48 50 26 25

    * Champs obligatoires

    Vos informations sont traitées par HEXAOM et transmises à un conseiller commercial qui vous contactera afin de répondre à votre demande. Les plans et images présentés sur notre site sont la propriété d’HEXAOM et ne peuvent pas être reproduits sans son accord. Pour retrouver notre politique de protection des données personnelles et exercer vos droits conformément à la « loi informatique et liberté » cliquez-ici.