Maison neuve à
Levroux (36110) Référence : KG2295442_1

Prix du projet : Maison avec Terrain

prix 166 644 €

  • 3 pièces
  • 2 chambres
  • Surface maison 70 m2

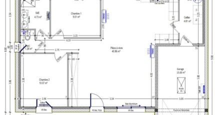
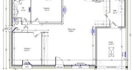
Maison de 3 pièces (70 m²) en vente à Levroux
IDÉALEMENT SITUÉE - MAISON 3 PIÈCES NEUVE
En vente : localisée à deux pas de Châteauroux, nous vous présentons cette maison de 3 pièces de plain-pied de 70 m², idéalement située dans Levroux (36110).
Conçue de plain-pied, elle comporte deux chambres, une cuisine et une salle de bains. La maison est neuve.
Le terrain de la propriété s'étend sur 992 m².
Ce bien se trouve dans un secteur convoité. Il y a l'École Primaire Privée Clairefontaine, le Collège Condorcet, l'École Maternelle Joseph Pêcherat et l'École Élémentaire Joseph Pêcherat à moins de 10 minutes à pied. L'autoroute A20 et la nationale N151 sont accessibles à moins de 18 km. On trouve un tennis, un bassin de natation, deux boulangeries, des commerces, un supermarché, deux boucheries-charcuteries et un bureau de poste dans les environs. Le marché Place de la République anime le quartier chaque lundi matin.
Il est à vendre pour la somme de 166 644 €.
Contactez notre agence (Kevin GRIMAUD : 06-22-14-89-67) pour tout renseignement sur la maison, sur les démarches à suivre ou sur les modalités de vente. Concrétisez vos projets immobiliers avec Maisons Bruno Petit MJB Châteauroux.

Mentions légales

Terrain proposé par un partenaire foncier selon disponibilités et autorisation de publicité au prix de 35 744 €. Hors droit d'enregistrement et frais de notaire. Maison proposée, avec un contrat de construction de maison individuelle, dans le cadre de la loi du 19/12/1990, au prix de 130 900 € (Hors branchements et raccordements, papiers peints, peintures, revêtement de sol dans les chambres, qui sont chiffrés dans les travaux qui restent à charge du client. Tarif modifiable sans préavis). Étiquette énergie : A. Différents modèles disponibles pour ce terrain. Assurances et garanties du constructeur comprises (RC professionnelle, décennale, dommage ouvrage).

Contactez l'agence de Châteauroux

02 54 22 66 24

    * Champs obligatoires

    Vos informations sont traitées par HEXAOM et transmises à un conseiller commercial qui vous contactera afin de répondre à votre demande. Les plans et images présentés sur notre site sont la propriété d’HEXAOM et ne peuvent pas être reproduits sans son accord. Pour retrouver notre politique de protection des données personnelles et exercer vos droits conformément à la « loi informatique et liberté » cliquez-ici.