Maison neuve à
Liniez (36150) Référence : FR2299250_12

Prix du projet : Maison avec Terrain

prix 201 496 €

  • 4 pièces
  • 4 chambres
  • Surface maison 105 m2

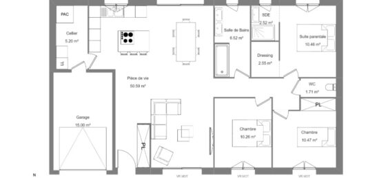
VENTE : maison F4 (105 m²) à Liniez
IDÉALEMENT SITUÉE - MAISON 4 PIÈCES NEUVE
À deux pas de Châteauroux, à vendre idéalement située dans Liniez (36150), nous sommes ravis de vous présenter cette maison de 4 pièces de plain-pied de 105 m². Son intérieur dispose de quatre chambres, d'une cuisine et de deux salles de bains.
Le terrain de la maison s'étend sur 1 264 m².
Cette maison est neuve.
Cette maison se situe dans un quartier convoité. Plusieurs écoles (maternelle, élémentaire, primaire et collège) sont implantées à moins de 10 minutes en voiture. L'autoroute A20 est accessible à 5 km. Il y a deux bibliothèques, deux tennis, un bassin de natation, un supermarché, quatre boulangeries, trois commerces, une épicerie et un bureau de poste dans les environs. Ne manquez pas le marché Place de la République chaque mercredi matin.
Elle est proposée à l'achat pour 201 496 €.
Contactez Franck RUBIO (tél : *6-30-49-64-43) pour obtenir de plus amples renseignements sur la maison. Maisons Bruno Petit MJB Châteauroux vous accompagne dans tous vos projets immobiliers et à toutes les étapes de l'achat.

Mentions légales

Terrain proposé par un partenaire foncier selon disponibilités et autorisation de publicité au prix de 17 696 €. Hors droit d'enregistrement et frais de notaire. Terrain + Maison proposés au prix de 183 800 € (Hors branchements et raccordements, papiers peints, peintures, revêtement de sol dans les chambres. Tarif modifiable sans préavis). Etiquette énergie : A. Différents modèles disponibles pour ce terrain. Assurances et garanties du constructeur (RC professionnelle, décennale, dommage ouvrage, garantie de remboursement de l'acompte, livraison à prix et délai convenu) : https://www.maisons-brunopetit.fr/mentions-legales/.

Contactez l'agence de Châteauroux

02 54 22 66 24

    * Champs obligatoires

    Vos informations sont traitées par HEXAOM et transmises à un conseiller commercial qui vous contactera afin de répondre à votre demande. Les plans et images présentés sur notre site sont la propriété d’HEXAOM et ne peuvent pas être reproduits sans son accord. Pour retrouver notre politique de protection des données personnelles et exercer vos droits conformément à la « loi informatique et liberté » cliquez-ici.