Maison neuve à
Luant (36350) Référence : KG2430609_7

Prix du projet : Maison avec Terrain

prix 265 800 €

  • 5 pièces
  • 4 chambres
  • Surface maison 110 m2

Projet de construction Maison de 5 pièces (110 m²)à Luant
EMPLACEMENT PRIVILÉGIÉ - MAISON 5 PIÈCES NEUVE
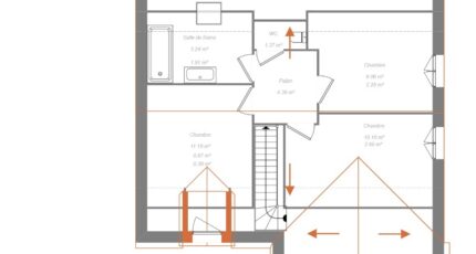
À 13 km de Châteauroux, en vente bénéficiant d'un emplacement privilégié dans Luant (36350), Maisons Bruno Petit MJB Châteauroux vous présente cette maison de 5 pièces de 110 m² et de 1 120 m² de terrain. Son intérieur dispose de quatre chambres, d'une cuisine et de deux salles de bains.
Cette maison possède 2 niveaux. Elle est neuve.
Cette maison se trouve dans un quartier prisé. Il y a l'École Primaire Jeanne Dacquin à moins de 10 minutes à pied. Côté transports en commun, on trouve deux gares (Luant et Lothiers) à moins de 10 minutes en voiture. Il y a un accès à l'autoroute A20 à 5 km. Il y a un tennis, une bibliothèque et une boulangerie à proximité du bien.
Elle est à vendre pour la somme de 265 800 €.
N'hésitez pas à prendre contact avec notre agence (Kevin GRIMAUD : *6-22-14-89-67) pour plus d'informations sur la maison ou sur les modalités de vente. Maisons Bruno Petit MJB Châteauroux vous accompagne à toutes les étapes de votre projet et dans tous vos projets immobiliers.

Mentions légales

Terrain proposé par un partenaire foncier selon disponibilités et autorisation de publicité au prix de 20 000 €. Hors droit d'enregistrement et frais de notaire. Terrain + Maison proposés au prix de 265 800 € (Hors branchements et raccordements, papiers peints, peintures, revêtement de sol dans les chambres. Tarif modifiable sans préavis). Etiquette énergie : A. Différents modèles disponibles pour ce terrain. Assurances et garanties du constructeur (RC professionnelle, décennale, dommage ouvrage, garantie de remboursement de l'acompte, livraison à prix et délai convenu) : https://www.maisons-brunopetit.fr/mentions-legales/.

Contactez l'agence de Châteauroux

02 54 22 66 24

    * Champs obligatoires

    Vos informations sont traitées par HEXAOM et transmises à un conseiller commercial qui vous contactera afin de répondre à votre demande. Les plans et images présentés sur notre site sont la propriété d’HEXAOM et ne peuvent pas être reproduits sans son accord. Pour retrouver notre politique de protection des données personnelles et exercer vos droits conformément à la « loi informatique et liberté » cliquez-ici.