Maison neuve à
Méasnes (23360) Référence : KG2471385_1

Prix du projet : Maison avec Terrain

prix 147 500 €

  • 3 pièces
  • 2 chambres
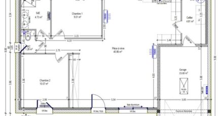
  • Surface maison 70 m2

Méasnes : Projet de construction maison de 3 pièces (70 m²)
EMPLACEMENT PRIVILÉGIÉ - MAISON 3 PIÈCES NEUVE
En vente : notre agence Maisons Bruno Petit MJB Châteauroux est heureuse de vous proposer cette maison de 3 pièces de plain-pied de 70 m² bénéficiant d'un emplacement privilégié dans Méasnes (23360). Elle inclut deux chambres, une cuisine et une salle de bains.
Le terrain du bien s'étend sur 2 340 m².
Cette maison est neuve.
Cette maison se trouve dans un quartier convoité. L'École Primaire Robert Desnos est implantée à moins de 10 minutes à pied.
Son prix de vente est de 147 500 €.
Prenez contact avec Kevin GRIMAUD (tél : *6-22-14-89-67) pour toute information sur la maison.

Mentions légales

Terrain proposé par un partenaire foncier selon disponibilités et autorisation de publicité au prix de 20 000 €. Hors droit d'enregistrement et frais de notaire. Terrain + Maison proposés au prix de 147 500 € (Hors branchements et raccordements, papiers peints, peintures, revêtement de sol dans les chambres. Tarif modifiable sans préavis). Etiquette énergie : A. Différents modèles disponibles pour ce terrain. Assurances et garanties du constructeur (RC professionnelle, décennale, dommage ouvrage, garantie de remboursement de l'acompte, livraison à prix et délai convenu) : https://www.maisons-brunopetit.fr/mentions-legales/.

Contactez l'agence de Châteauroux

02 54 22 66 24

    * Champs obligatoires

    Vos informations sont traitées par HEXAOM et transmises à un conseiller commercial qui vous contactera afin de répondre à votre demande. Les plans et images présentés sur notre site sont la propriété d’HEXAOM et ne peuvent pas être reproduits sans son accord. Pour retrouver notre politique de protection des données personnelles et exercer vos droits conformément à la « loi informatique et liberté » cliquez-ici.