Maison neuve à
Méasnes (23360) Référence : KG2471385_2

Prix du projet : Maison avec Terrain

prix 148 500 €

  • 4 pièces
  • 3 chambres
  • Surface maison 85 m2

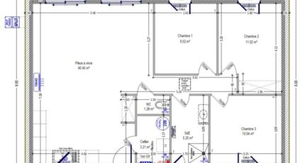
Projet de construction Maison de 4 pièces (85 m²) à Méasnes
EMPLACEMENT PRIVILÉGIÉ - MAISON 4 PIÈCES NEUVE
Nous vous proposons cette maison de 4 pièces de plain-pied de 85 m² bénéficiant d'un emplacement d'exception dans Méasnes (23360). Conçue de plain-pied, elle compte trois chambres, une cuisine et une salle de bains.
Le terrain de la propriété s'étend sur 2 340 m².
Cette maison est neuve.
La maison est située dans un secteur convoité. On trouve l'École Primaire Robert Desnos à moins de 10 minutes à pied.
Elle est à vendre pour la somme de 148 500 €.
Prenez contact avec notre agence (GRIMAUD Kevin : *6-22-14-89-67) pour toute question sur la maison, sur les démarches à suivre ou sur les modalités de vente. Maisons Bruno Petit MJB Châteauroux est là pour vous accompagner dans tous vos projets immobiliers.

Mentions légales

Terrain proposé par un partenaire foncier selon disponibilités et autorisation de publicité au prix de 20 000 €. Hors droit d'enregistrement et frais de notaire. Terrain + Maison proposés au prix de 148 500 € (Hors branchements et raccordements, papiers peints, peintures, revêtement de sol dans les chambres. Tarif modifiable sans préavis). Etiquette énergie : A. Différents modèles disponibles pour ce terrain. Assurances et garanties du constructeur (RC professionnelle, décennale, dommage ouvrage, garantie de remboursement de l'acompte, livraison à prix et délai convenu) : https://www.maisons-brunopetit.fr/mentions-legales/.

Contactez l'agence de Châteauroux

02 54 22 66 24

    * Champs obligatoires

    Vos informations sont traitées par HEXAOM et transmises à un conseiller commercial qui vous contactera afin de répondre à votre demande. Les plans et images présentés sur notre site sont la propriété d’HEXAOM et ne peuvent pas être reproduits sans son accord. Pour retrouver notre politique de protection des données personnelles et exercer vos droits conformément à la « loi informatique et liberté » cliquez-ici.