Maison neuve à
Méasnes (23360) Référence : KG2471385_3

Prix du projet : Maison avec Terrain

prix 158 500 €

  • 4 pièces
  • 3 chambres
  • Surface maison 85 m2

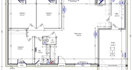
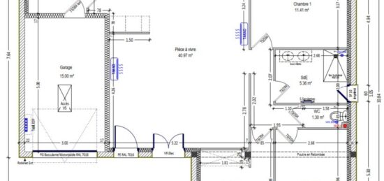
Projet de construction Maison F4 (85 m²) à Méasnes
EMPLACEMENT PRIVILÉGIÉ - MAISON 4 PIÈCES NEUVE
En vente : Maisons Bruno Petit MJB Châteauroux vous présente, bénéficiant d'un emplacement privilégié dans Méasnes (23360), cette maison de 4 pièces de plain-pied de 85 m².
Elle se divise en trois chambres, une cuisine et une salle de bains. Cette maison est neuve.
Le terrain de la propriété est de 2 340 m².
La maison se situe dans un secteur recherché. L'École Primaire Robert Desnos est implantée à moins de 10 minutes à pied.
Elle est proposée à l'achat pour 158 500 €.
Prenez contact avec notre agence (Kevin GRIMAUD : *6-22-14-89-67) pour tout renseignement sur le bien. Donnez vie à vos projets immobiliers avec Maisons Bruno Petit MJB Châteauroux.

Mentions légales

Terrain proposé par un partenaire foncier selon disponibilités et autorisation de publicité au prix de 20 000 €. Hors droit d'enregistrement et frais de notaire. Terrain + Maison proposés au prix de 158 500 € (Hors branchements et raccordements, papiers peints, peintures, revêtement de sol dans les chambres. Tarif modifiable sans préavis). Etiquette énergie : A. Différents modèles disponibles pour ce terrain. Assurances et garanties du constructeur (RC professionnelle, décennale, dommage ouvrage, garantie de remboursement de l'acompte, livraison à prix et délai convenu) : https://www.maisons-brunopetit.fr/mentions-legales/.

Contactez l'agence de Châteauroux

02 54 22 66 24

    * Champs obligatoires

    Vos informations sont traitées par HEXAOM et transmises à un conseiller commercial qui vous contactera afin de répondre à votre demande. Les plans et images présentés sur notre site sont la propriété d’HEXAOM et ne peuvent pas être reproduits sans son accord. Pour retrouver notre politique de protection des données personnelles et exercer vos droits conformément à la « loi informatique et liberté » cliquez-ici.