Maison neuve à
Montierchaume (36130) Référence : KG2291844_1

Prix du projet : Maison avec Terrain

prix 168 900 €

  • 3 pièces
  • 2 chambres
  • Surface maison 70 m2

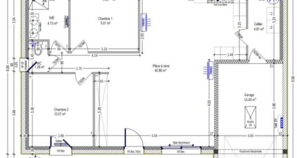
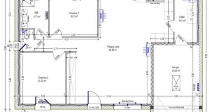
VENTE d'une maison de 3 pièces (70 m²) à Montierchaume
PROCHE DE CHÂTEAUROUX - MAISON 3 PIÈCES NEUVE
À vendre : à deux pas de Châteauroux, à Montierchaume (36130), venez découvrir cette maison de 3 pièces de plain-pied de 70 m². Conçue de plain-pied, elle est composée de deux chambres, d'une cuisine et d'une salle de bains.
Le terrain de cette maison s'étend sur 842 m².
Cette maison est neuve.
Il y a l'École Primaire Jean Moulin à moins de 10 minutes à pied. Niveau transports en commun, on trouve deux gares (Neuvy-Pailloux et Châteauroux) à moins de 10 minutes en voiture. L'autoroute A20 et la nationale N151 sont accessibles à moins de 6 km. Il y a un tennis, une bibliothèque, une boulangerie et une épicerie dans les environs.
Elle est proposée à l'achat pour 168 900 €.
Prenez contact avec notre agence (Kevin GRIMAUD : 06-22-14-89-67) pour tout renseignement sur la propriété.

Mentions légales

Terrain proposé par un partenaire foncier selon disponibilités et autorisation de publicité au prix de 38 000 €. Hors droit d'enregistrement et frais de notaire. Maison proposée, avec un contrat de construction de maison individuelle, dans le cadre de la loi du 19/12/1990, au prix de 130 900 € (Hors branchements et raccordements, papiers peints, peintures, revêtement de sol dans les chambres, qui sont chiffrés dans les travaux qui restent à charge du client. Tarif modifiable sans préavis). Étiquette énergie : A. Différents modèles disponibles pour ce terrain. Assurances et garanties du constructeur comprises (RC professionnelle, décennale, dommage ouvrage).

Contactez l'agence de Châteauroux

02 54 22 66 24

    * Champs obligatoires

    Vos informations sont traitées par HEXAOM et transmises à un conseiller commercial qui vous contactera afin de répondre à votre demande. Les plans et images présentés sur notre site sont la propriété d’HEXAOM et ne peuvent pas être reproduits sans son accord. Pour retrouver notre politique de protection des données personnelles et exercer vos droits conformément à la « loi informatique et liberté » cliquez-ici.