Maison neuve à
Montierchaume (36130) Référence : KG2291928_4

Prix du projet : Maison avec Terrain

prix 245 050 €

  • 4 pièces
  • 4 chambres
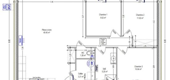
  • Surface maison 118 m2

Montierchaume : maison de 4 pièces (118 m²) en vente
EMPLACEMENT PRIVILÉGIÉ - MAISON 4 PIÈCES NEUVE
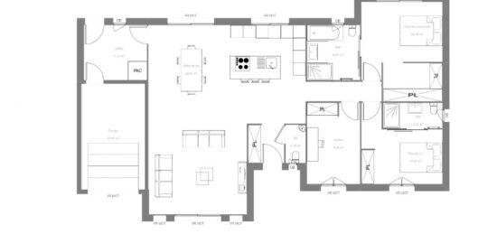
En vente : située à deux pas de Châteauroux, nous sommes heureux de vous proposer, bénéficiant d'un emplacement privilégié dans Montierchaume (36130), cette maison de 4 pièces de plain-pied de 118 m² et de 1 150 m² de terrain. Son intérieur inclut quatre chambres, une cuisine et deux salles de bains.
La maison est neuve.
Cette maison se trouve dans un secteur convoité. Il y a l'École Primaire Jean Moulin à moins de 10 minutes à pied. Côté transports en commun, on trouve les gares Neuvy-Pailloux et Châteauroux à moins de 10 minutes en voiture. L'autoroute A20 et la nationale N151 sont accessibles à moins de 6 km. Il y a un tennis, une bibliothèque, une boulangerie et une épicerie à quelques minutes du bien.
Son prix de vente est de 245 050 €.
Contactez Kevin GRIMAUD (tél : 06-22-14-89-67) pour plus de renseignements sur la maison, sur les démarches à suivre ou sur les modalités de vente. Maisons Bruno Petit MJB Châteauroux est là pour vous accompagner à toutes les étapes de votre projet.

Mentions légales

Terrain proposé par un partenaire foncier selon disponibilités et autorisation de publicité au prix de 40 250 €. Hors droit d'enregistrement et frais de notaire. Maison proposée, avec un contrat de construction de maison individuelle, dans le cadre de la loi du 19/12/1990, au prix de 204 800 € (Hors branchements et raccordements, papiers peints, peintures, revêtement de sol dans les chambres, qui sont chiffrés dans les travaux qui restent à charge du client. Tarif modifiable sans préavis). Étiquette énergie : A. Différents modèles disponibles pour ce terrain. Assurances et garanties du constructeur comprises (RC professionnelle, décennale, dommage ouvrage).

Contactez l'agence de Châteauroux

02 54 22 66 24

    * Champs obligatoires

    Vos informations sont traitées par HEXAOM et transmises à un conseiller commercial qui vous contactera afin de répondre à votre demande. Les plans et images présentés sur notre site sont la propriété d’HEXAOM et ne peuvent pas être reproduits sans son accord. Pour retrouver notre politique de protection des données personnelles et exercer vos droits conformément à la « loi informatique et liberté » cliquez-ici.