Maison neuve à
Montierchaume (36130) Référence : KG2291928_6

Prix du projet : Maison avec Terrain

prix 330 250 €

  • 4 pièces
  • 3 chambres
  • Surface maison 110 m2

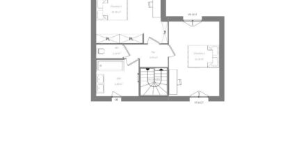
VENTE : maison de 4 pièces (110 m²) à Montierchaume
EMPLACEMENT PRIVILÉGIÉ - MAISON 4 PIÈCES NEUVE
En vente : localisée à 9 km de Châteauroux, bénéficiant d'un emplacement privilégié dans Montierchaume (36130), nous sommes heureux de vous proposer cette maison de 4 pièces de 110 m².
Il s'agit d'une maison de 2 niveaux. Son intérieur dispose de trois chambres, d'une cuisine et de deux salles de bains. La maison est neuve.
Le terrain de la propriété est de 1 150 m².
La maison se trouve dans un quartier recherché. Il y a l'École Primaire Jean Moulin à moins de 10 minutes à pied. Côté transports en commun, on trouve les gares Neuvy-Pailloux et Châteauroux à moins de 10 minutes en voiture. L'autoroute A20 et la nationale N151 sont accessibles à moins de 6 km. Il y a un tennis, une bibliothèque, une boulangerie et une épicerie dans les environs.
Elle est à vendre pour la somme de 330 250 €.
N'hésitez pas à prendre contact avec notre agence (Kevin GRIMAUD : 06-22-14-89-67) pour toute question sur la maison, sur les modalités de vente ou sur les démarches à suivre. Maisons Bruno Petit MJB Châteauroux vous accompagne à toutes les étapes de votre projet et dans tous vos projets immobiliers.

Mentions légales

Terrain proposé par un partenaire foncier selon disponibilités et autorisation de publicité au prix de 40 250 €. Hors droit d'enregistrement et frais de notaire. Maison proposée, avec un contrat de construction de maison individuelle, dans le cadre de la loi du 19/12/1990, au prix de 290 000 € (Hors branchements et raccordements, papiers peints, peintures, revêtement de sol dans les chambres, qui sont chiffrés dans les travaux qui restent à charge du client. Tarif modifiable sans préavis). Étiquette énergie : A. Différents modèles disponibles pour ce terrain. Assurances et garanties du constructeur comprises (RC professionnelle, décennale, dommage ouvrage).

Contactez l'agence de Châteauroux

02 54 22 66 24

    * Champs obligatoires

    Vos informations sont traitées par HEXAOM et transmises à un conseiller commercial qui vous contactera afin de répondre à votre demande. Les plans et images présentés sur notre site sont la propriété d’HEXAOM et ne peuvent pas être reproduits sans son accord. Pour retrouver notre politique de protection des données personnelles et exercer vos droits conformément à la « loi informatique et liberté » cliquez-ici.