Maison neuve à
Montierchaume (36130) Référence : KG2430007_1

Prix du projet : Maison avec Terrain

prix 168 250 €

  • 4 pièces
  • 3 chambres
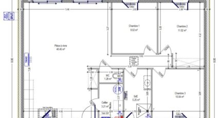
  • Surface maison 85 m2

Montierchaume : Projet de construction maison de 4 pièces (85 m²)
EMPLACEMENT PRIVILÉGIÉ - MAISON 4 PIÈCES NEUVE
En vente à deux pas de Châteauroux, Maisons Bruno Petit MJB Châteauroux vous propose, bénéficiant d'un emplacement privilégié dans Montierchaume (36130), cette maison de 4 pièces de plain-pied de 85 m². Elle dispose de trois chambres, d'une cuisine et d'une salle de bains.
Le terrain de la propriété est de 1 150 m².
Cette maison est neuve.
Cette maison se trouve dans un quartier attractif. L'École Primaire Jean Moulin est implantée à moins de 10 minutes à pied. Niveau transports, il y a deux gares (Neuvy-Pailloux et Châteauroux) à moins de 10 minutes en voiture. L'autoroute A20 et la nationale N151 sont accessibles à moins de 6 km. On trouve un tennis, une bibliothèque, une boulangerie et une épicerie à proximité.
Son prix de vente est de 168 250 €.
Prenez contact avec notre agence (GRIMAUD Kevin : *6-22-14-89-67) pour tout renseignement sur la propriété. Maisons Bruno Petit MJB Châteauroux est là pour vous accompagner dans tous vos projets immobiliers.

Mentions légales

Terrain proposé par un partenaire foncier selon disponibilités et autorisation de publicité au prix de 40 250 €. Hors droit d'enregistrement et frais de notaire. Terrain + Maison proposés au prix de 168 250 € (Hors branchements et raccordements, papiers peints, peintures, revêtement de sol dans les chambres. Tarif modifiable sans préavis). Etiquette énergie : A. Différents modèles disponibles pour ce terrain. Assurances et garanties du constructeur (RC professionnelle, décennale, dommage ouvrage, garantie de remboursement de l'acompte, livraison à prix et délai convenu) : https://www.maisons-brunopetit.fr/mentions-legales/.

Contactez l'agence de Châteauroux

02 54 22 66 24

    * Champs obligatoires

    Vos informations sont traitées par HEXAOM et transmises à un conseiller commercial qui vous contactera afin de répondre à votre demande. Les plans et images présentés sur notre site sont la propriété d’HEXAOM et ne peuvent pas être reproduits sans son accord. Pour retrouver notre politique de protection des données personnelles et exercer vos droits conformément à la « loi informatique et liberté » cliquez-ici.