Maison neuve à
Montierchaume (36130) Référence : KG2430007_6

Prix du projet : Maison avec Terrain

prix 324 050 €

  • 5 pièces
  • 4 chambres
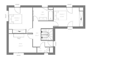
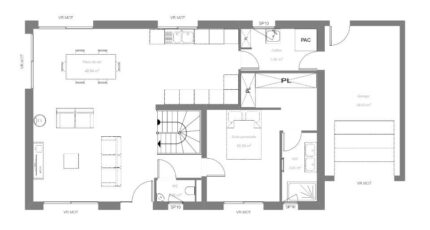
  • Surface maison 120 m2

Montierchaume : Projet de construction maison T5 (120 m²)
EMPLACEMENT PRIVILÉGIÉ - MAISON 5 PIÈCES NEUVE
En vente : à quelques kilomètres de Châteauroux, nous vous présentons, bénéficiant d'un emplacement d'exception dans Montierchaume (36130), cette maison de 5 pièces de 120 m² et de 1 150 m² de terrain. Elle inclut quatre chambres, une cuisine et deux salles de bains.
Il s'agit d'une maison de 2 niveaux. Elle est neuve.
Cette maison se situe dans un secteur recherché. L'École Primaire Jean Moulin est implantée à moins de 10 minutes à pied. Côté transports en commun, on trouve deux gares (Neuvy-Pailloux et Châteauroux) à moins de 10 minutes en voiture. L'autoroute A20 et la nationale N151 sont accessibles à moins de 6 km. Il y a un tennis, une bibliothèque, une boulangerie et une épicerie à proximité.
Son prix de vente est de 324 050 €.
Contactez Kevin GRIMAUD (*6-22-14-89-67) pour toute question sur la maison. Maisons Bruno Petit MJB Châteauroux est là pour vous accompagner à toutes les étapes de l'achat.

Mentions légales

Terrain proposé par un partenaire foncier selon disponibilités et autorisation de publicité au prix de 40 250 €. Hors droit d'enregistrement et frais de notaire. Terrain + Maison proposés au prix de 324 050 € (Hors branchements et raccordements, papiers peints, peintures, revêtement de sol dans les chambres. Tarif modifiable sans préavis). Etiquette énergie : A. Différents modèles disponibles pour ce terrain. Assurances et garanties du constructeur (RC professionnelle, décennale, dommage ouvrage, garantie de remboursement de l'acompte, livraison à prix et délai convenu) : https://www.maisons-brunopetit.fr/mentions-legales/.

Contactez l'agence de Châteauroux

02 54 22 66 24

    * Champs obligatoires

    Vos informations sont traitées par HEXAOM et transmises à un conseiller commercial qui vous contactera afin de répondre à votre demande. Les plans et images présentés sur notre site sont la propriété d’HEXAOM et ne peuvent pas être reproduits sans son accord. Pour retrouver notre politique de protection des données personnelles et exercer vos droits conformément à la « loi informatique et liberté » cliquez-ici.