Maison neuve à
Neuillay-les-Bois (36500) Référence : KG2297700_5

Prix du projet : Maison avec Terrain

prix 212 400 €

  • 3 pièces
  • 2 chambres
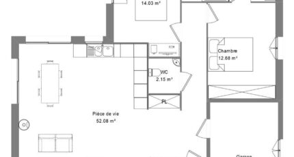
  • Surface maison 100 m2

Neuillay-les-Bois : maison F3 (100 m²) en vente
IDÉALEMENT SITUÉE - MAISON 3 PIÈCES NEUVE
À 17 km de Châteauroux, ayez le coup de coeur pour cette maison de 3 pièces de plain-pied de 100 m² et de 935 m² de terrain à vendre, idéalement située dans Neuillay-les-Bois (36500).
Conçue de plain-pied, elle se divise en deux chambres, une cuisine et deux salles de bains. La maison est neuve.
Cette maison est située dans un secteur attractif. On trouve l'École Primaire Désiré Bailly à moins de 10 minutes à pied. Niveau transports en commun, il y a la gare Luant à moins de 10 minutes en voiture. Il y a un accès à l'autoroute A20 à 11 km. On trouve une bibliothèque et un tennis à quelques minutes à peine.
Elle est à vendre pour la somme de 212 400 €.
Contactez Kevin GRIMAUD (06-22-14-89-67) pour tout renseignement sur la maison. Maisons Bruno Petit MJB Châteauroux vous accompagne dans toutes vos démarches et à toutes les étapes de votre projet.

Mentions légales

Terrain proposé par un partenaire foncier selon disponibilités et autorisation de publicité au prix de 15 000 €. Hors droit d'enregistrement et frais de notaire. Terrain + Maison proposés au prix de 197 400 € (Hors branchements et raccordements, papiers peints, peintures, revêtement de sol dans les chambres. Tarif modifiable sans préavis). Etiquette énergie : A. Différents modèles disponibles pour ce terrain. Assurances et garanties du constructeur (RC professionnelle, décennale, dommage ouvrage, garantie de remboursement de l'acompte, livraison à prix et délai convenu) : https://www.maisons-brunopetit.fr/mentions-legales/.

Contactez l'agence de Châteauroux

02 54 22 66 24

    * Champs obligatoires

    Vos informations sont traitées par HEXAOM et transmises à un conseiller commercial qui vous contactera afin de répondre à votre demande. Les plans et images présentés sur notre site sont la propriété d’HEXAOM et ne peuvent pas être reproduits sans son accord. Pour retrouver notre politique de protection des données personnelles et exercer vos droits conformément à la « loi informatique et liberté » cliquez-ici.