Maison neuve à
Niherne (36250) Référence : KG2292863_2

Prix du projet : Maison avec Terrain

prix 163 145 €

  • 3 pièces
  • 2 chambres
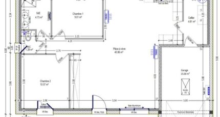
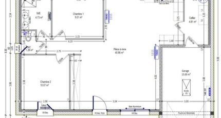
  • Surface maison 70 m2

VENTE d'une maison F3 (70 m²) à Niherne
MAISON 3 PIÈCES NEUVE - PROCHE DE CHÂTEAUROUX
À vendre : à deux pas de Châteauroux, nous vous présentons cette maison de 3 pièces de plain-pied de 70 m² à Niherne (36250). Elle propose deux chambres, une cuisine et une salle de bains.
Le terrain de cette maison est de 658 m².
Cette maison est neuve.
Il y a l'École Primaire Geneviève Panis à moins de 10 minutes à pied. On trouve un accès à l'autoroute A20 à 6 km. On trouve un bassin de natation, un tennis, une boulangerie et une épicerie dans les environs.
Elle est proposée à l'achat pour 163 145 €.
Prenez contact avec notre agence (Kevin GRIMAUD : 06-22-14-89-67) pour plus de renseignements sur la maison ou sur les modalités de vente. Maisons Bruno Petit MJB Châteauroux est là pour vous accompagner dans tous vos projets immobiliers.

Mentions légales

Terrain proposé par un partenaire foncier selon disponibilités et autorisation de publicité au prix de 32 242 €. Hors droit d'enregistrement et frais de notaire. Maison proposée, avec un contrat de construction de maison individuelle, dans le cadre de la loi du 19/12/1990, au prix de 130 903 € (Hors branchements et raccordements, papiers peints, peintures, revêtement de sol dans les chambres, qui sont chiffrés dans les travaux qui restent à charge du client. Tarif modifiable sans préavis). Étiquette énergie : A. Différents modèles disponibles pour ce terrain. Assurances et garanties du constructeur comprises (RC professionnelle, décennale, dommage ouvrage).

Contactez l'agence de Châteauroux

02 54 22 66 24

    * Champs obligatoires

    Vos informations sont traitées par HEXAOM et transmises à un conseiller commercial qui vous contactera afin de répondre à votre demande. Les plans et images présentés sur notre site sont la propriété d’HEXAOM et ne peuvent pas être reproduits sans son accord. Pour retrouver notre politique de protection des données personnelles et exercer vos droits conformément à la « loi informatique et liberté » cliquez-ici.