Maison neuve à
Niherne (36250) Référence : TM2309607_1

Prix du projet : Maison avec Terrain

prix 186 700 €

  • 5 pièces
  • 3 chambres
  • Surface maison 100 m2

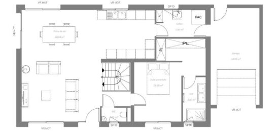
Niherne : maison de 5 pièces (100 m²) à vendre
MAISON 5 PIÈCES NEUVE - PROCHE DE CHÂTEAUROUX
À vendre à 10 km de Châteauroux, ayez le coup de coeur pour à Niherne (36250), cette maison de 5 pièces de plain-pied de 100 m² et de 700 m² de terrain.
Son intérieur compte trois chambres, une cuisine et deux salles de bains. La maison est neuve.
L'École Primaire Geneviève Panis est implantée à moins de 10 minutes à pied. L'autoroute A20 est accessible à 6 km. On trouve un bassin de natation, un tennis, une boulangerie et une épicerie dans les environs.
Son prix de vente est de 186 700 €.
Prenez contact avec notre agence (Thomas MANIERE : 06-15-51-71-54) pour toute question sur ce bien, sur les démarches à suivre ou sur les modalités de vente. Maisons Bruno Petit MJB Châteauroux est là pour vous accompagner dans tous vos projets immobiliers.

Mentions légales

Terrain proposé par un partenaire foncier selon disponibilités et autorisation de publicité au prix de 35 000 €. Hors droit d'enregistrement et frais de notaire. Terrain + Maison proposés au prix de 151 700 € (Hors branchements et raccordements, papiers peints, peintures, revêtement de sol dans les chambres. Tarif modifiable sans préavis). Etiquette énergie : A. Différents modèles disponibles pour ce terrain. Assurances et garanties du constructeur (RC professionnelle, décennale, dommage ouvrage, garantie de remboursement de l'acompte, livraison à prix et délai convenu) : https://www.maisons-brunopetit.fr/mentions-legales/.

Contactez l'agence de Châteauroux

02 54 22 66 24

    * Champs obligatoires

    Vos informations sont traitées par HEXAOM et transmises à un conseiller commercial qui vous contactera afin de répondre à votre demande. Les plans et images présentés sur notre site sont la propriété d’HEXAOM et ne peuvent pas être reproduits sans son accord. Pour retrouver notre politique de protection des données personnelles et exercer vos droits conformément à la « loi informatique et liberté » cliquez-ici.