Maison neuve à
Niherne (36250) Référence : TM2309607_5

Prix du projet : Maison avec Terrain

prix 232 400 €

  • 3 pièces
  • 2 chambres
  • Surface maison 100 m2

VENTE : maison T3 (100 m²) à Niherne
PROCHE DE CHÂTEAUROUX - MAISON 3 PIÈCES NEUVE
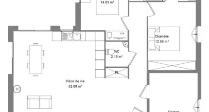
En vente à 10 km de Châteauroux, votre agence Maisons Bruno Petit MJB Châteauroux est heureuse de vous proposer cette maison de 3 pièces de plain-pied de 100 m² à Niherne (36250). Son intérieur propose deux chambres, une cuisine et deux salles de bains.
Le terrain de cette maison est de 700 m².
Cette maison est neuve.
Il y a l'École Primaire Geneviève Panis à moins de 10 minutes à pied. L'autoroute A20 est accessible à 6 km. On trouve un bassin de natation, un tennis, une boulangerie et une épicerie à proximité du logement.
Son prix de vente est de 232 400 €.
Contactez Thomas MANIERE (tél : 06-15-51-71-54) pour plus d'informations sur le bien ou sur les modalités de vente.

Mentions légales

Terrain proposé par un partenaire foncier selon disponibilités et autorisation de publicité au prix de 35 000 €. Hors droit d'enregistrement et frais de notaire. Terrain + Maison proposés au prix de 197 400 € (Hors branchements et raccordements, papiers peints, peintures, revêtement de sol dans les chambres. Tarif modifiable sans préavis). Etiquette énergie : A. Différents modèles disponibles pour ce terrain. Assurances et garanties du constructeur (RC professionnelle, décennale, dommage ouvrage, garantie de remboursement de l'acompte, livraison à prix et délai convenu) : https://www.maisons-brunopetit.fr/mentions-legales/.

Contactez l'agence de Châteauroux

02 54 22 66 24

    * Champs obligatoires

    Vos informations sont traitées par HEXAOM et transmises à un conseiller commercial qui vous contactera afin de répondre à votre demande. Les plans et images présentés sur notre site sont la propriété d’HEXAOM et ne peuvent pas être reproduits sans son accord. Pour retrouver notre politique de protection des données personnelles et exercer vos droits conformément à la « loi informatique et liberté » cliquez-ici.