Maison neuve à
Niherne (36250) Référence : KG2360551_1

Prix du projet : Maison avec Terrain

prix 242 000 €

  • 5 pièces
  • 4 chambres
  • Surface maison 120 m2

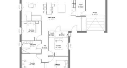
VENTE : maison de 5 pièces (120 m²) à Niherne
IDÉALEMENT SITUÉE - MAISON 5 PIÈCES NEUVE
À vendre : localisée à quelques kilomètres de Châteauroux, nous sommes ravis de vous présenter, idéalement située dans Niherne (36250), cette maison de 5 pièces de plain-pied de 120 m².
Elle dispose de quatre chambres, d'une cuisine et d'une salle de bains. Cette maison est neuve.
Le terrain de la propriété s'étend sur 770 m².
La maison est située dans un secteur convoité. On trouve l'École Primaire Geneviève Panis à moins de 10 minutes à pied. L'autoroute A20 est accessible à 6 km. Il y a un bassin de natation, un tennis, une boulangerie et une épicerie à quelques minutes à peine.
Elle est proposée à l'achat pour 242 000 €.
Contactez notre agence (GRIMAUD Kevin : *6-22-14-89-67) pour toute information sur la maison. Maisons Bruno Petit MJB Châteauroux est là pour vous accompagner dans toutes vos démarches.

Mentions légales

Terrain proposé par un partenaire foncier selon disponibilités et autorisation de publicité au prix de 34 300 €. Hors droit d'enregistrement et frais de notaire. Terrain + Maison proposés au prix de 207 700 € (Hors branchements et raccordements, papiers peints, peintures, revêtement de sol dans les chambres. Tarif modifiable sans préavis). Etiquette énergie : A. Différents modèles disponibles pour ce terrain. Assurances et garanties du constructeur (RC professionnelle, décennale, dommage ouvrage, garantie de remboursement de l'acompte, livraison à prix et délai convenu) : https://www.maisons-brunopetit.fr/mentions-legales/.

Contactez l'agence de Châteauroux

02 54 22 66 24

    * Champs obligatoires

    Vos informations sont traitées par HEXAOM et transmises à un conseiller commercial qui vous contactera afin de répondre à votre demande. Les plans et images présentés sur notre site sont la propriété d’HEXAOM et ne peuvent pas être reproduits sans son accord. Pour retrouver notre politique de protection des données personnelles et exercer vos droits conformément à la « loi informatique et liberté » cliquez-ici.