Maison neuve à
Niherne (36250) Référence : KG2360551_5

Prix du projet : Maison avec Terrain

prix 324 500 €

  • 4 pièces
  • 3 chambres
  • Surface maison 110 m2

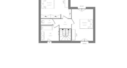
Niherne : maison de 4 pièces (110 m²) à vendre
IDÉALEMENT SITUÉE - MAISON 4 PIÈCES NEUVE
À vendre à 10 km de Châteauroux, Maisons Bruno Petit MJB Châteauroux vous présente, idéalement située dans Niherne (36250), cette maison de 4 pièces de 110 m² et de 770 m² de terrain.
Cette maison compte 2 niveaux. Son intérieur propose trois chambres, une cuisine et deux salles de bains. Cette maison est neuve.
Cette maison se situe dans un secteur attractif. L'École Primaire Geneviève Panis est implantée à moins de 10 minutes à pied. Il y a un accès à l'autoroute A20 à 6 km. Il y a un bassin de natation, un tennis, une boulangerie et une épicerie dans les environs.
Elle est proposée à l'achat pour 324 500 €.
Prenez contact avec notre agence (GRIMAUD Kevin : *6-22-14-89-67) pour obtenir de plus amples renseignements sur la propriété, sur les démarches à suivre ou sur les modalités de vente.

Mentions légales

Terrain proposé par un partenaire foncier selon disponibilités et autorisation de publicité au prix de 34 300 €. Hors droit d'enregistrement et frais de notaire. Terrain + Maison proposés au prix de 290 200 € (Hors branchements et raccordements, papiers peints, peintures, revêtement de sol dans les chambres. Tarif modifiable sans préavis). Etiquette énergie : A. Différents modèles disponibles pour ce terrain. Assurances et garanties du constructeur (RC professionnelle, décennale, dommage ouvrage, garantie de remboursement de l'acompte, livraison à prix et délai convenu) : https://www.maisons-brunopetit.fr/mentions-legales/.

Contactez l'agence de Châteauroux

02 54 22 66 24

    * Champs obligatoires

    Vos informations sont traitées par HEXAOM et transmises à un conseiller commercial qui vous contactera afin de répondre à votre demande. Les plans et images présentés sur notre site sont la propriété d’HEXAOM et ne peuvent pas être reproduits sans son accord. Pour retrouver notre politique de protection des données personnelles et exercer vos droits conformément à la « loi informatique et liberté » cliquez-ici.