Maison neuve à
Niherne (36250) Référence : KG2428975_2

Prix du projet : Maison avec Terrain

prix 175 775 €

  • 4 pièces
  • 3 chambres
  • Surface maison 85 m2

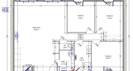
Projet de construction : maison de 4 pièces (85 m²) à Niherne
IDÉALEMENT SITUÉE - MAISON 4 PIÈCES NEUVE
En vente : localisée à 10 km de Châteauroux, laissez vous charmer par cette maison de 4 pièces de plain-pied de 85 m² idéalement située dans Niherne (36250).
Conçue de plain-pied, elle dispose de trois chambres, d'une cuisine et d'une salle de bains. Cette maison est neuve.
Le terrain de la propriété s'étend sur 971 m².
La maison se trouve dans un secteur recherché. L'École Primaire Geneviève Panis est implantée à moins de 10 minutes à pied. On trouve un accès à l'autoroute A20 à 6 km. On trouve un bassin de natation, un tennis, une boulangerie et une épicerie à quelques minutes du bien.
Elle est à vendre pour la somme de 175 775 €.
N'hésitez pas à prendre contact avec notre agence (Kevin GRIMAUD : *6-22-14-89-67) pour plus d'informations sur le bien, sur les modalités de vente et sur les démarches à suivre. Maisons Bruno Petit MJB Châteauroux est là pour vous accompagner à toutes les étapes de votre projet.

Mentions légales

Terrain proposé par un partenaire foncier selon disponibilités et autorisation de publicité au prix de 47 775 €. Hors droit d'enregistrement et frais de notaire. Terrain + Maison proposés au prix de 175 775 € (Hors branchements et raccordements, papiers peints, peintures, revêtement de sol dans les chambres. Tarif modifiable sans préavis). Etiquette énergie : A. Différents modèles disponibles pour ce terrain. Assurances et garanties du constructeur (RC professionnelle, décennale, dommage ouvrage, garantie de remboursement de l'acompte, livraison à prix et délai convenu) : https://www.maisons-brunopetit.fr/mentions-legales/.

Contactez l'agence de Châteauroux

02 54 22 66 24

    * Champs obligatoires

    Vos informations sont traitées par HEXAOM et transmises à un conseiller commercial qui vous contactera afin de répondre à votre demande. Les plans et images présentés sur notre site sont la propriété d’HEXAOM et ne peuvent pas être reproduits sans son accord. Pour retrouver notre politique de protection des données personnelles et exercer vos droits conformément à la « loi informatique et liberté » cliquez-ici.