Maison neuve à
Pruniers (36120) Référence : KG2297134_7

Prix du projet : Maison avec Terrain

prix 215 100 €

  • 4 pièces
  • 3 chambres
  • Surface maison 110 m2

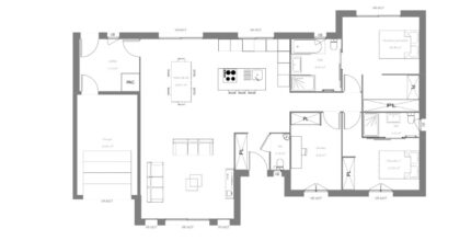
VENTE d'une maison T4 (110 m²) à Pruniers
IDÉALEMENT SITUÉE - MAISON 4 PIÈCES NEUVE
À quelques kilomètres de Châteauroux, à vendre idéalement située dans Pruniers (36120), nous sommes heureux de vous proposer cette maison de 4 pièces de plain-pied de 110 m².
Son intérieur dispose de trois chambres, d'une cuisine et de deux salles de bains. Cette maison est neuve.
Le terrain de la propriété est de 980 m².
Cette maison se trouve dans un quartier recherché. Une école primaire y est implantée. Il y a une boulangerie dans les environs.
Son prix de vente est de 215 100 €.
Contactez notre agence (Kevin GRIMAUD : 06-22-14-89-67) pour toute question sur la maison ou sur les démarches à suivre. Donnez vie à vos projets immobiliers avec Maisons Bruno Petit MJB Châteauroux.

Mentions légales

Terrain proposé par un partenaire foncier selon disponibilités et autorisation de publicité au prix de 13 000 €. Hors droit d'enregistrement et frais de notaire. Terrain + Maison proposés au prix de 202 100 € (Hors branchements et raccordements, papiers peints, peintures, revêtement de sol dans les chambres. Tarif modifiable sans préavis). Etiquette énergie : A. Différents modèles disponibles pour ce terrain. Assurances et garanties du constructeur (RC professionnelle, décennale, dommage ouvrage, garantie de remboursement de l'acompte, livraison à prix et délai convenu) : https://www.maisons-brunopetit.fr/mentions-legales/.

Contactez l'agence de Châteauroux

02 54 22 66 24

    * Champs obligatoires

    Vos informations sont traitées par HEXAOM et transmises à un conseiller commercial qui vous contactera afin de répondre à votre demande. Les plans et images présentés sur notre site sont la propriété d’HEXAOM et ne peuvent pas être reproduits sans son accord. Pour retrouver notre politique de protection des données personnelles et exercer vos droits conformément à la « loi informatique et liberté » cliquez-ici.