Maison neuve à
Quincy (18120) Référence : SG2393740_6

Prix du projet : Maison avec Terrain

prix 193 270 €

  • 3 pièces
  • 2 chambres
  • Surface maison 70 m2

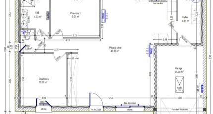
Maison de 3 pièces (70 m²) à vendre à Quincy
EMPLACEMENT PRIVILÉGIÉ - MAISON 3 PIÈCES NEUVE
À quelques kilomètres de Bourges, Maisons Bruno Petit MJB Bourges vous présente cette maison de 3 pièces de plain-pied de 70 m² en vente, bénéficiant d'un emplacement privilégié dans Quincy (18120).
Son intérieur est composé de deux chambres, d'une cuisine et d'une salle de bains. La maison est neuve.
Le terrain de la propriété est de 2 982 m².
Cette maison se trouve dans un secteur convoité. Une école primaire y est implantée. Niveau transports en commun, il y a quatre gares à moins de 10 minutes en voiture. L'autoroute A71 est accessible à 9 km. On trouve un tennis et une boulangerie à proximité de la maison.
Son prix de vente est de 193 270 €.
Prenez contact avec Sandra GROGRELIN (*2-48-50-26-25) pour obtenir de plus amples informations sur la maison ou sur les modalités de vente. Faites de vos projets immobiliers une réalité avec Maisons Bruno Petit MJB Bourges.

Mentions légales

Terrain proposé par un partenaire foncier selon disponibilités et autorisation de publicité au prix de 62 370 €. Hors droit d'enregistrement et frais de notaire. Terrain + Maison proposés au prix de 130 900 € (Hors branchements et raccordements, papiers peints, peintures, revêtement de sol dans les chambres. Tarif modifiable sans préavis). Etiquette énergie : A. Différents modèles disponibles pour ce terrain. Assurances et garanties du constructeur (RC professionnelle, décennale, dommage ouvrage, garantie de remboursement de l'acompte, livraison à prix et délai convenu) : https://www.maisons-brunopetit.fr/mentions-legales/.

Contactez l'agence de Bourges

02 48 50 26 25

    * Champs obligatoires

    Vos informations sont traitées par HEXAOM et transmises à un conseiller commercial qui vous contactera afin de répondre à votre demande. Les plans et images présentés sur notre site sont la propriété d’HEXAOM et ne peuvent pas être reproduits sans son accord. Pour retrouver notre politique de protection des données personnelles et exercer vos droits conformément à la « loi informatique et liberté » cliquez-ici.