Maison neuve à
Saint-Amand-Montrond (18200) Référence : JL2311927_3

Prix du projet : Maison avec Terrain

prix 167 400 €

  • 3 pièces
  • 2 chambres
  • Surface maison 60 m2

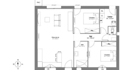
VENTE d'une maison F2 (60 m²) à Saint-Amand-Montrond
IDÉALEMENT SITUÉE - MAISON 2 PIÈCES NEUVE
Votre agence Maisons Bruno Petit MJB Bourges est heureuse de vous proposer cette maison de 2 pièces de plain-pied de 60 m² idéalement située dans Saint-Amand-Montrond (18200). Elle offre deux chambres, une cuisine et une salle de bains.
Le terrain de la maison est de 1 379 m².
Cette maison est neuve.
Cette maison se situe dans un secteur convoité. Des écoles maternelles et élémentaires se trouvent à moins de 10 minutes à pied. Niveau transports en commun, il y a la gare Saint-Amand-Montrond-Orval à moins de 10 minutes en voiture. L'autoroute A71 est accessible à 4 km. On trouve des boulangeries, des commerces, trois supermarchés, trois boucheries-charcuteries et une poissonnerie à quelques minutes du logement. Le marché Cours Manuel anime les environs.
Son prix de vente est de 167 400 €.
Prenez contact avec notre constructeur (Jonathan LEBLANC : 02-48-50-26-25) pour obtenir de plus amples renseignements sur la propriété.

Mentions légales

Terrain proposé par un partenaire foncier selon disponibilités et autorisation de publicité au prix de 35 000 €. Hors droit d'enregistrement et frais de notaire. Terrain + Maison proposés au prix de 132 400 € (Hors branchements et raccordements, papiers peints, peintures, revêtement de sol dans les chambres. Tarif modifiable sans préavis). Etiquette énergie : A. Différents modèles disponibles pour ce terrain. Assurances et garanties du constructeur (RC professionnelle, décennale, dommage ouvrage, garantie de remboursement de l'acompte, livraison à prix et délai convenu) : https://www.maisons-brunopetit.fr/mentions-legales/.

Contactez l'agence de Bourges

02 48 50 26 25

    * Champs obligatoires

    Vos informations sont traitées par HEXAOM et transmises à un conseiller commercial qui vous contactera afin de répondre à votre demande. Les plans et images présentés sur notre site sont la propriété d’HEXAOM et ne peuvent pas être reproduits sans son accord. Pour retrouver notre politique de protection des données personnelles et exercer vos droits conformément à la « loi informatique et liberté » cliquez-ici.