Maison neuve à
Saint-Août (36120) Référence : KG2297205_6

Prix du projet : Maison avec Terrain

prix 219 400 €

  • 3 pièces
  • 2 chambres
  • Surface maison 100 m2

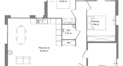
VENTE : maison de 3 pièces (100 m²) à Saint-Août
EMPLACEMENT PRIVILÉGIÉ - MAISON 3 PIÈCES NEUVE
À quelques kilomètres de Châteauroux, nous vous présentons cette maison de 3 pièces de plain-pied de 100 m² en vente, bénéficiant d'un emplacement privilégié dans Saint-Août (36120).
Elle compte deux chambres, une cuisine et deux salles de bains. La maison est neuve.
Le terrain du bien est de 1 069 m².
La propriété est située dans un secteur recherché. Il y a l'École Primaire les Marronniers à moins de 10 minutes à pied et deux crèches. On trouve un tennis, deux commerces, une boulangerie, une épicerie et une boucherie-charcuterie dans les environs. Ne manquez pas le marché Place du Champ de foire tous les mardis matin.
Elle est à vendre pour la somme de 219 400 €.
Contactez notre agence (GRIMAUD Kevin : 06-22-14-89-67) pour plus d'informations sur la maison, sur les modalités de vente ou sur les démarches à suivre. Maisons Bruno Petit MJB Châteauroux est là pour vous accompagner à toutes les étapes de l'achat.

Mentions légales

Terrain proposé par un partenaire foncier selon disponibilités et autorisation de publicité au prix de 22 000 €. Hors droit d'enregistrement et frais de notaire. Terrain + Maison proposés au prix de 197 400 € (Hors branchements et raccordements, papiers peints, peintures, revêtement de sol dans les chambres. Tarif modifiable sans préavis). Etiquette énergie : A. Différents modèles disponibles pour ce terrain. Assurances et garanties du constructeur (RC professionnelle, décennale, dommage ouvrage, garantie de remboursement de l'acompte, livraison à prix et délai convenu) : https://www.maisons-brunopetit.fr/mentions-legales/.

Contactez l'agence de Châteauroux

02 54 22 66 24

    * Champs obligatoires

    Vos informations sont traitées par HEXAOM et transmises à un conseiller commercial qui vous contactera afin de répondre à votre demande. Les plans et images présentés sur notre site sont la propriété d’HEXAOM et ne peuvent pas être reproduits sans son accord. Pour retrouver notre politique de protection des données personnelles et exercer vos droits conformément à la « loi informatique et liberté » cliquez-ici.