Maison neuve à
Saint-Août (36120) Référence : FR2415279_10

Prix du projet : Maison avec Terrain

prix 205 120 €

  • 4 pièces
  • 3 chambres
  • Surface maison 100 m2

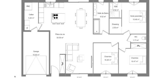
Maison F4 (100 m²) à vendre à Saint-Août
EMPLACEMENT PRIVILÉGIÉ - MAISON 4 PIÈCES NEUVE
En vente à quelques kilomètres de Châteauroux, bénéficiant d'un emplacement privilégié dans Saint-Août (36120), nous vous présentons cette maison de 4 pièces de plain-pied de 100 m².
Conçue de plain-pied, elle comporte trois chambres, une cuisine et une salle de bains. Cette maison est neuve.
Le terrain de la propriété est de 1 069 m².
La maison se situe dans un secteur recherché. On trouve l'École Primaire les Marronniers à moins de 10 minutes à pied et deux crèches. Il y a un tennis, deux commerces, une boulangerie, une épicerie et une boucherie-charcuterie à proximité de la maison. Le marché Place du Champ de foire a lieu tous les mardis matin.
Son prix de vente est de 205 120 €.
Contactez notre agence (Franck RUBIO : °6-30-49-64-43) pour toute question sur la propriété, sur les démarches à suivre ou sur les modalités de vente. Concrétisez vos projets immobiliers avec Maisons Bruno Petit MJB Châteauroux.

Mentions légales

Terrain proposé par un partenaire foncier selon disponibilités et autorisation de publicité au prix de 22 000 €. Hors droit d'enregistrement et frais de notaire. Terrain + Maison proposés au prix de 205 120 € (Hors branchements et raccordements, papiers peints, peintures, revêtement de sol dans les chambres. Tarif modifiable sans préavis). Etiquette énergie : A. Différents modèles disponibles pour ce terrain. Assurances et garanties du constructeur (RC professionnelle, décennale, dommage ouvrage, garantie de remboursement de l'acompte, livraison à prix et délai convenu) : https://www.maisons-brunopetit.fr/mentions-legales/.

Contactez l'agence de Châteauroux

02 54 22 66 24

    * Champs obligatoires

    Vos informations sont traitées par HEXAOM et transmises à un conseiller commercial qui vous contactera afin de répondre à votre demande. Les plans et images présentés sur notre site sont la propriété d’HEXAOM et ne peuvent pas être reproduits sans son accord. Pour retrouver notre politique de protection des données personnelles et exercer vos droits conformément à la « loi informatique et liberté » cliquez-ici.