Maison neuve à
Saint-Août (36120) Référence : KG2430792_1

Prix du projet : Maison avec Terrain

prix 160 500 €

  • 4 pièces
  • 3 chambres
  • Surface maison 85 m2

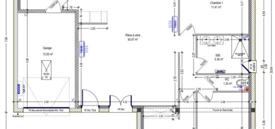
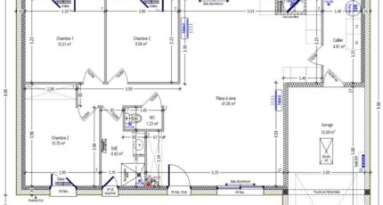
Saint-Août : Projet de construction maison de 4 pièces (85 m²)
EMPLACEMENT PRIVILÉGIÉ - MAISON 4 PIÈCES NEUVE
À vendre à deux pas de Châteauroux, nous sommes ravis de vous présenter cette maison de 4 pièces de plain-pied de 85 m² et de 1 060 m² de terrain bénéficiant d'un emplacement d'exception dans Saint-Août (36120). Son intérieur dispose de trois chambres, d'une cuisine et d'une salle de bains.
La maison est neuve.
Cette maison se trouve dans un secteur prisé. Il y a l'École Primaire les Marronniers à moins de 10 minutes à pied et deux crèches. On trouve un tennis, deux commerces, une boulangerie, une boucherie-charcuterie et une épicerie à quelques minutes. Ne manquez pas le marché Place du Champ de foire chaque mardi matin.
Son prix de vente est de 160 500 €.
N'hésitez pas à prendre contact avec Kevin GRIMAUD (*6-22-14-89-67) pour obtenir de plus amples informations sur le bien ou sur les modalités de vente.

Mentions légales

Terrain proposé par un partenaire foncier selon disponibilités et autorisation de publicité au prix de 22 000 €. Hors droit d'enregistrement et frais de notaire. Terrain + Maison proposés au prix de 160 500 € (Hors branchements et raccordements, papiers peints, peintures, revêtement de sol dans les chambres. Tarif modifiable sans préavis). Etiquette énergie : A. Différents modèles disponibles pour ce terrain. Assurances et garanties du constructeur (RC professionnelle, décennale, dommage ouvrage, garantie de remboursement de l'acompte, livraison à prix et délai convenu) : https://www.maisons-brunopetit.fr/mentions-legales/.

Contactez l'agence de Châteauroux

02 54 22 66 24

    * Champs obligatoires

    Vos informations sont traitées par HEXAOM et transmises à un conseiller commercial qui vous contactera afin de répondre à votre demande. Les plans et images présentés sur notre site sont la propriété d’HEXAOM et ne peuvent pas être reproduits sans son accord. Pour retrouver notre politique de protection des données personnelles et exercer vos droits conformément à la « loi informatique et liberté » cliquez-ici.