Maison neuve à
Saint-Doulchard (18230) Référence : FH2442453_9

Prix du projet : Maison avec Terrain

prix 412 390 €

  • 6 pièces
  • 4 chambres
  • Surface maison 180 m2

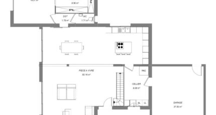
Maison de 6 pièces (180 m²) en vente à Saint-Doulchard
QUARTIER RECHERCHÉ - MAISON 6 PIÈCES NEUVE
En vente : à deux pas de Bourges, nous vous présentons cette maison de 6 pièces de 180 m² construite dans un quartier convoité de Saint-Doulchard (18230).
Cette maison comporte 2 niveaux. Son intérieur comporte quatre chambres, une cuisine et deux salles de bains. Cette maison est neuve.
Le terrain du bien est de 750 m².
Cette maison se situe dans un secteur recherché. On trouve l'École Primaire le Bourg, le Collège Louis Armand, l'École Maternelle les Verdins et l'École Élémentaire les Verdins à moins de 10 minutes à pied. Côté transports en commun, il y a les gares Bourges, Marmagne et Saint-Germain-du-Puy à moins de 10 minutes en voiture. On trouve un tennis, un bassin de natation, deux boulangeries, un commerce, un bureau de poste et une boucherie-charcuterie dans les environs.
Son prix de vente est de 412 390 €.
Contactez Fabien HELLELI (tél : 02-48-50-26-25) pour tout renseignement sur le bien, sur les démarches à suivre ou sur les modalités de vente. Maisons Bruno Petit MJB Bourges est là pour vous accompagner à toutes les étapes de l'achat.

Mentions légales

Terrain proposé par un partenaire foncier selon disponibilités et autorisation de publicité au prix de 105 000 €. Hors droit d'enregistrement et frais de notaire. Terrain + Maison proposés au prix de 412 390 € (Hors branchements et raccordements, papiers peints, peintures, revêtement de sol dans les chambres. Tarif modifiable sans préavis). Etiquette énergie : A. Différents modèles disponibles pour ce terrain. Assurances et garanties du constructeur (RC professionnelle, décennale, dommage ouvrage, garantie de remboursement de l'acompte, livraison à prix et délai convenu) : https://www.maisons-brunopetit.fr/mentions-legales/.

Contactez l'agence de Bourges

02 48 50 26 25

    * Champs obligatoires

    Vos informations sont traitées par HEXAOM et transmises à un conseiller commercial qui vous contactera afin de répondre à votre demande. Les plans et images présentés sur notre site sont la propriété d’HEXAOM et ne peuvent pas être reproduits sans son accord. Pour retrouver notre politique de protection des données personnelles et exercer vos droits conformément à la « loi informatique et liberté » cliquez-ici.