Maison neuve à
Saint-Fiel (23000) Référence : KG2471590_1

Prix du projet : Maison avec Terrain

prix 157 200 €

  • 3 pièces
  • 2 chambres
  • Surface maison 70 m2

Projet de construction : maison de 3 pièces (70 m²) à Saint-Fiel
EMPLACEMENT PRIVILÉGIÉ - MAISON 3 PIÈCES NEUVE
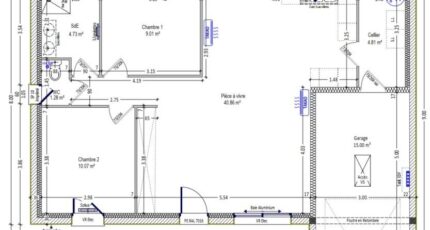
À vendre bénéficiant d'un emplacement privilégié dans Saint-Fiel (23000), nous vous présentons cette maison de 3 pièces de plain-pied de 70 m² et de 1 500 m² de terrain.
Conçue de plain-pied, elle comporte deux chambres, une cuisine et une salle de bains. Cette maison est neuve.
Cette maison se situe dans un quartier recherché. On y trouve une école primaire ainsi qu'une crèche. Côté transports, on trouve la gare Guéret à moins de 10 minutes en voiture. Il y a un accès à la nationale N145 à 4 km. Il y a une bibliothèque à quelques minutes à peine.
Elle est à vendre pour la somme de 157 200 €.
Contactez notre agence (GRIMAUD Kevin : *6-22-14-89-67) pour toute question sur la propriété. Maisons Bruno Petit MJB Châteauroux vous accompagne à toutes les étapes de l'achat et dans tous vos projets immobiliers.

Mentions légales

Terrain proposé par un partenaire foncier selon disponibilités et autorisation de publicité au prix de 30 000 €. Hors droit d'enregistrement et frais de notaire. Terrain + Maison proposés au prix de 157 200 € (Hors branchements et raccordements, papiers peints, peintures, revêtement de sol dans les chambres. Tarif modifiable sans préavis). Etiquette énergie : A. Différents modèles disponibles pour ce terrain. Assurances et garanties du constructeur (RC professionnelle, décennale, dommage ouvrage, garantie de remboursement de l'acompte, livraison à prix et délai convenu) : https://www.maisons-brunopetit.fr/mentions-legales/.

Contactez l'agence de Châteauroux

02 54 22 66 24

    * Champs obligatoires

    Vos informations sont traitées par HEXAOM et transmises à un conseiller commercial qui vous contactera afin de répondre à votre demande. Les plans et images présentés sur notre site sont la propriété d’HEXAOM et ne peuvent pas être reproduits sans son accord. Pour retrouver notre politique de protection des données personnelles et exercer vos droits conformément à la « loi informatique et liberté » cliquez-ici.