Maison neuve à
Saint-Fiel (23000) Référence : KG2471590_2

Prix du projet : Maison avec Terrain

prix 168 500 €

  • 4 pièces
  • 3 chambres
  • Surface maison 85 m2

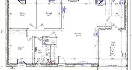
Projet de construction d'une maison F4 (85 m²) à Saint-Fiel
EMPLACEMENT PRIVILÉGIÉ - MAISON 4 PIÈCES NEUVE
Ayez le coup de coeur pour cette maison de 4 pièces de plain-pied de 85 m² bénéficiant d'un emplacement privilégié dans Saint-Fiel (23000). Conçue de plain-pied, elle inclut trois chambres, une cuisine et une salle de bains.
Le terrain de la propriété est de 1 500 m².
La maison est neuve.
La maison se situe dans un quartier convoité. On y trouve une école primaire ainsi qu'une crèche. Niveau transports, on trouve la gare Guéret à moins de 10 minutes en voiture. Il y a un accès à la nationale N145 à 4 km. Il y a une bibliothèque à quelques minutes à peine.
Son prix de vente est de 168 500 €.
Contactez Kevin GRIMAUD (tél : *6-22-14-89-67) pour toute question sur la maison. Maisons Bruno Petit MJB Châteauroux est là pour vous accompagner dans tous vos projets immobiliers.

Mentions légales

Terrain proposé par un partenaire foncier selon disponibilités et autorisation de publicité au prix de 30 000 €. Hors droit d'enregistrement et frais de notaire. Terrain + Maison proposés au prix de 168 500 € (Hors branchements et raccordements, papiers peints, peintures, revêtement de sol dans les chambres. Tarif modifiable sans préavis). Etiquette énergie : A. Différents modèles disponibles pour ce terrain. Assurances et garanties du constructeur (RC professionnelle, décennale, dommage ouvrage, garantie de remboursement de l'acompte, livraison à prix et délai convenu) : https://www.maisons-brunopetit.fr/mentions-legales/.

Contactez l'agence de Châteauroux

02 54 22 66 24

    * Champs obligatoires

    Vos informations sont traitées par HEXAOM et transmises à un conseiller commercial qui vous contactera afin de répondre à votre demande. Les plans et images présentés sur notre site sont la propriété d’HEXAOM et ne peuvent pas être reproduits sans son accord. Pour retrouver notre politique de protection des données personnelles et exercer vos droits conformément à la « loi informatique et liberté » cliquez-ici.