Maison neuve à
Saint-Fiel (23000) Référence : KG2471590_3

Prix du projet : Maison avec Terrain

prix 175 500 €

  • 4 pièces
  • 3 chambres
  • Surface maison 85 m2

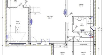
Projet de construction d'une maison F4 (85 m²) à Saint-Fiel
EMPLACEMENT PRIVILÉGIÉ - MAISON 4 PIÈCES NEUVE
À vendre : bénéficiant d'un emplacement d'exception dans Saint-Fiel (23000), nous sommes ravis de vous présenter cette maison de 4 pièces de plain-pied de 85 m² et de 1 500 m² de terrain. Conçue de plain-pied, elle se divise en trois chambres, une cuisine et une salle de bains.
Cette maison est neuve.
La maison se trouve dans un secteur prisé. Une école primaire y est implantée et une crèche. Niveau transports en commun, il y a la gare Guéret à moins de 10 minutes en voiture. La nationale N145 est accessible à 4 km. On trouve une bibliothèque à quelques minutes à peine.
Son prix de vente est de 175 500 €.
Prenez contact avec notre agence (GRIMAUD Kevin : *6-22-14-89-67) pour plus de renseignements sur le bien ou sur les démarches à suivre. Faites de vos projets immobiliers une réalité avec Maisons Bruno Petit MJB Châteauroux.

Mentions légales

Terrain proposé par un partenaire foncier selon disponibilités et autorisation de publicité au prix de 30 000 €. Hors droit d'enregistrement et frais de notaire. Terrain + Maison proposés au prix de 175 500 € (Hors branchements et raccordements, papiers peints, peintures, revêtement de sol dans les chambres. Tarif modifiable sans préavis). Etiquette énergie : A. Différents modèles disponibles pour ce terrain. Assurances et garanties du constructeur (RC professionnelle, décennale, dommage ouvrage, garantie de remboursement de l'acompte, livraison à prix et délai convenu) : https://www.maisons-brunopetit.fr/mentions-legales/.

Contactez l'agence de Châteauroux

02 54 22 66 24

    * Champs obligatoires

    Vos informations sont traitées par HEXAOM et transmises à un conseiller commercial qui vous contactera afin de répondre à votre demande. Les plans et images présentés sur notre site sont la propriété d’HEXAOM et ne peuvent pas être reproduits sans son accord. Pour retrouver notre politique de protection des données personnelles et exercer vos droits conformément à la « loi informatique et liberté » cliquez-ici.