Maison neuve à
Saint-Fiel (23000) Référence : KG2471590_9

Prix du projet : Maison avec Terrain

prix 285 500 €

  • 6 pièces
  • 4 chambres
  • Surface maison 120 m2

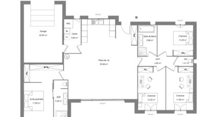
Projet de construction d'une maison de 6 pièces (120 m²) à Saint-Fiel
EMPLACEMENT PRIVILÉGIÉ - MAISON 6 PIÈCES NEUVE
Nous vous présentons cette maison de 6 pièces de plain-pied de 120 m² et de 1 500 m² de terrain en vente, bénéficiant d'un emplacement privilégié dans Saint-Fiel (23000). Elle dispose de quatre chambres, d'une cuisine et de deux salles de bains.
La maison est neuve.
Cette maison se trouve dans un secteur prisé. On y trouve une école primaire ainsi qu'une structure d'accueil pour les enfants en bas âge. Niveau transports, il y a la gare Guéret à moins de 10 minutes en voiture. Il y a un accès à la nationale N145 à 4 km. On trouve une bibliothèque à proximité du bien.
Elle est proposée à l'achat pour 285 500 €.
N'hésitez pas à prendre contact avec Kevin GRIMAUD (*6-22-14-89-67) pour toute information sur la propriété ou sur les modalités de vente. Maisons Bruno Petit MJB Châteauroux est là pour vous accompagner à toutes les étapes de votre projet.

Mentions légales

Terrain proposé par un partenaire foncier selon disponibilités et autorisation de publicité au prix de 30 000 €. Hors droit d'enregistrement et frais de notaire. Terrain + Maison proposés au prix de 285 500 € (Hors branchements et raccordements, papiers peints, peintures, revêtement de sol dans les chambres. Tarif modifiable sans préavis). Etiquette énergie : A. Différents modèles disponibles pour ce terrain. Assurances et garanties du constructeur (RC professionnelle, décennale, dommage ouvrage, garantie de remboursement de l'acompte, livraison à prix et délai convenu) : https://www.maisons-brunopetit.fr/mentions-legales/.

Contactez l'agence de Châteauroux

02 54 22 66 24

    * Champs obligatoires

    Vos informations sont traitées par HEXAOM et transmises à un conseiller commercial qui vous contactera afin de répondre à votre demande. Les plans et images présentés sur notre site sont la propriété d’HEXAOM et ne peuvent pas être reproduits sans son accord. Pour retrouver notre politique de protection des données personnelles et exercer vos droits conformément à la « loi informatique et liberté » cliquez-ici.