Maison neuve à
Saint-Germain-des-Bois (18340) Référence : SG2402714_2

Prix du projet : Maison avec Terrain

prix 144 900 €

  • 3 pièces
  • 2 chambres
  • Surface maison 70 m2

VENTE : maison de 3 pièces (70 m²) à Saint-Germain-des-Bois
IDÉALEMENT SITUÉE - MAISON 3 PIÈCES NEUVE
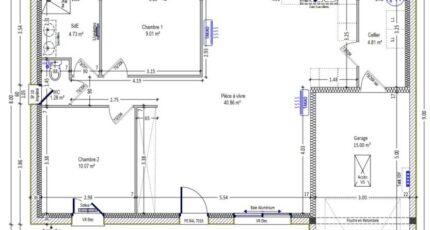
À 22 km de Bourges, notre agence Maisons Bruno Petit MJB Bourges est heureuse de vous proposer cette maison de 3 pièces de plain-pied de 70 m² idéalement située dans Saint-Germain-des-Bois (18340).
Son intérieur offre deux chambres, une cuisine et une salle de bains. La maison est neuve.
Le terrain du bien s'étend sur 930 m².
La maison se trouve dans un quartier recherché. Il y a l'École Primaire Yvonne Tissier à moins de 10 minutes à pied. L'autoroute A71 et les nationales N142 et N151 sont accessibles à moins de 17 km.
Elle est à vendre pour la somme de 144 900 €.
N'hésitez pas à prendre contact avec Sandra GROGRELIN (tél : *2-48-50-26-25) pour plus d'informations sur la maison ou sur les modalités de vente. Maisons Bruno Petit MJB Bourges est là pour vous accompagner dans tous vos projets immobiliers.

Mentions légales

Terrain proposé par un partenaire foncier selon disponibilités et autorisation de publicité au prix de 14 000 €. Hors droit d'enregistrement et frais de notaire. Terrain + Maison proposés au prix de 130 900 € (Hors branchements et raccordements, papiers peints, peintures, revêtement de sol dans les chambres. Tarif modifiable sans préavis). Etiquette énergie : A. Différents modèles disponibles pour ce terrain. Assurances et garanties du constructeur (RC professionnelle, décennale, dommage ouvrage, garantie de remboursement de l'acompte, livraison à prix et délai convenu) : https://www.maisons-brunopetit.fr/mentions-legales/.

Contactez l'agence de Bourges

02 48 50 26 25

    * Champs obligatoires

    Vos informations sont traitées par HEXAOM et transmises à un conseiller commercial qui vous contactera afin de répondre à votre demande. Les plans et images présentés sur notre site sont la propriété d’HEXAOM et ne peuvent pas être reproduits sans son accord. Pour retrouver notre politique de protection des données personnelles et exercer vos droits conformément à la « loi informatique et liberté » cliquez-ici.