Maison neuve à
Saint-Laurent (23000) Référence : KG2471448_2

Prix du projet : Maison avec Terrain

prix 164 000 €

  • 4 pièces
  • 3 chambres
  • Surface maison 85 m2

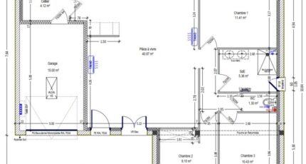
Saint-Laurent : Projet de construction maison de 4 pièces (85 m²)
EMPLACEMENT PRIVILÉGIÉ - MAISON 4 PIÈCES NEUVE
En vente bénéficiant d'un emplacement privilégié dans Saint-Laurent (23000), découvrez cette maison de 4 pièces de plain-pied de 85 m². Son intérieur inclut trois chambres, une cuisine et une salle de bains.
Le terrain du bien s'étend sur 1 360 m².
Cette maison est neuve.
La maison se trouve dans un secteur prisé. On y trouve une école primaire. Niveau transports en commun, il y a deux gares (Busseau sur Creuse et Guéret) à moins de 10 minutes en voiture. Il y a un accès à la nationale N145 à 5 km. On trouve une bibliothèque et une épicerie dans les environs.
Son prix de vente est de 164 000 €.
N'hésitez pas à prendre contact avec notre agence (Kevin GRIMAUD : *6-22-14-89-67) pour toute question sur la maison. Maisons Bruno Petit MJB Châteauroux vous accompagne dans tous vos projets immobiliers et dans toutes vos démarches.

Mentions légales

Terrain proposé par un partenaire foncier selon disponibilités et autorisation de publicité au prix de 18 500 €. Hors droit d'enregistrement et frais de notaire. Terrain + Maison proposés au prix de 164 000 € (Hors branchements et raccordements, papiers peints, peintures, revêtement de sol dans les chambres. Tarif modifiable sans préavis). Etiquette énergie : A. Différents modèles disponibles pour ce terrain. Assurances et garanties du constructeur (RC professionnelle, décennale, dommage ouvrage, garantie de remboursement de l'acompte, livraison à prix et délai convenu) : https://www.maisons-brunopetit.fr/mentions-legales/.

Contactez l'agence de Châteauroux

02 54 22 66 24

    * Champs obligatoires

    Vos informations sont traitées par HEXAOM et transmises à un conseiller commercial qui vous contactera afin de répondre à votre demande. Les plans et images présentés sur notre site sont la propriété d’HEXAOM et ne peuvent pas être reproduits sans son accord. Pour retrouver notre politique de protection des données personnelles et exercer vos droits conformément à la « loi informatique et liberté » cliquez-ici.