Maison neuve à
Saint-Maur (36250) Référence : KG2295293_8

Prix du projet : Maison avec Terrain

prix 288 350 €

  • 5 pièces
  • 4 chambres
  • Surface maison 120 m2

Saint-Maur : maison de 5 pièces (120 m²) à vendre
IDÉALEMENT SITUÉE - MAISON 5 PIÈCES NEUVE
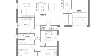
À vendre : à 6 km de Châteauroux, idéalement située dans Saint-Maur (36250), nous vous présentons cette maison de 5 pièces de plain-pied de 120 m².
Son intérieur offre quatre chambres, une cuisine et une salle de bains. Cette maison est neuve.
Le terrain du bien est de 860 m².
La maison est située dans un secteur attractif. L'École Maternelle les Planches et l'École Élémentaire les Planches se trouvent à moins de 10 minutes à pied. Côté transports, il y a les gares Châteauroux et Luant à moins de 10 minutes en voiture. L'autoroute A20 et la nationale N151 sont accessibles à moins de 7 km. On trouve un tennis, quatre commerces, une boulangerie et une boucherie-charcuterie dans les environs.
Son prix de vente est de 288 350 €.
Contactez Kevin GRIMAUD (tél : *6-22-14-89-67) pour toute information sur la propriété, sur les modalités de vente ou sur les démarches à suivre.

Mentions légales

Terrain proposé par un partenaire foncier selon disponibilités et autorisation de publicité au prix de 42 500 €. Hors droit d'enregistrement et frais de notaire. Terrain + Maison proposés au prix de 245 850 € (Hors branchements et raccordements, papiers peints, peintures, revêtement de sol dans les chambres. Tarif modifiable sans préavis). Etiquette énergie : A. Différents modèles disponibles pour ce terrain. Assurances et garanties du constructeur (RC professionnelle, décennale, dommage ouvrage, garantie de remboursement de l'acompte, livraison à prix et délai convenu) : https://www.maisons-brunopetit.fr/mentions-legales/.

Contactez l'agence de Châteauroux

02 54 22 66 24

    * Champs obligatoires

    Vos informations sont traitées par HEXAOM et transmises à un conseiller commercial qui vous contactera afin de répondre à votre demande. Les plans et images présentés sur notre site sont la propriété d’HEXAOM et ne peuvent pas être reproduits sans son accord. Pour retrouver notre politique de protection des données personnelles et exercer vos droits conformément à la « loi informatique et liberté » cliquez-ici.