Maison neuve à
Saint-Maur (36250) Référence : KG2360613_1

Prix du projet : Maison avec Terrain

prix 295 000 €

  • 5 pièces
  • 4 chambres
  • Surface maison 140 m2

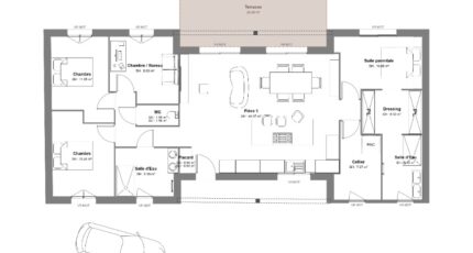
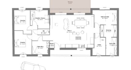
VENTE d'une maison T5 (140 m²) à Saint-Maur
EMPLACEMENT PRIVILÉGIÉ - MAISON 5 PIÈCES NEUVE
À vendre : située à 6 km de Châteauroux, bénéficiant d'un emplacement d'exception dans Saint-Maur (36250), nous vous proposons cette maison de 5 pièces de plain-pied de 140 m².
Elle compte quatre chambres, une cuisine et deux salles de bains. La maison est neuve.
Le terrain de la propriété s'étend sur 1 200 m².
Cette maison se situe dans un secteur attractif. Il y a l'École Maternelle les Planches et l'École Élémentaire les Planches à moins de 10 minutes à pied. Côté transports, on trouve les gares Châteauroux et Luant à moins de 10 minutes en voiture. L'autoroute A20 et la nationale N151 sont accessibles à moins de 7 km. Il y a un tennis, quatre commerces, une boulangerie et une boucherie-charcuterie à proximité.
Son prix de vente est de 295 000 €.
Contactez Kevin GRIMAUD (tél : *6-22-14-89-67) pour toute information sur la maison.

Mentions légales

Terrain proposé par un partenaire foncier selon disponibilités et autorisation de publicité au prix de 50 000 €. Hors droit d'enregistrement et frais de notaire. Terrain + Maison proposés au prix de 245 000 € (Hors branchements et raccordements, papiers peints, peintures, revêtement de sol dans les chambres. Tarif modifiable sans préavis). Etiquette énergie : A. Différents modèles disponibles pour ce terrain. Assurances et garanties du constructeur (RC professionnelle, décennale, dommage ouvrage, garantie de remboursement de l'acompte, livraison à prix et délai convenu) : https://www.maisons-brunopetit.fr/mentions-legales/.

Contactez l'agence de Châteauroux

02 54 22 66 24

    * Champs obligatoires

    Vos informations sont traitées par HEXAOM et transmises à un conseiller commercial qui vous contactera afin de répondre à votre demande. Les plans et images présentés sur notre site sont la propriété d’HEXAOM et ne peuvent pas être reproduits sans son accord. Pour retrouver notre politique de protection des données personnelles et exercer vos droits conformément à la « loi informatique et liberté » cliquez-ici.