Maison neuve à
Saint-Maur (36250) Référence : KG2360613_7

Prix du projet : Maison avec Terrain

prix 324 300 €

  • 4 pièces
  • 3 chambres
  • Surface maison 110 m2

VENTE : maison de 4 pièces (110 m²) à Saint-Maur
EMPLACEMENT PRIVILÉGIÉ - MAISON 4 PIÈCES NEUVE
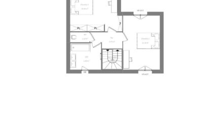
À deux pas de Châteauroux, découvrez cette maison de 4 pièces de 110 m² et de 1 200 m² de terrain bénéficiant d'un emplacement privilégié dans Saint-Maur (36250). Son intérieur comporte trois chambres, une cuisine et deux salles de bains.
C'est une maison de 2 niveaux. Elle est neuve.
Cette maison se trouve dans un quartier prisé. Il y a l'École Maternelle les Planches et l'École Élémentaire les Planches à moins de 10 minutes à pied. Côté transports, on trouve deux gares (Châteauroux et Luant) à moins de 10 minutes en voiture. L'autoroute A20 et la nationale N151 sont accessibles à moins de 7 km. Il y a un tennis, quatre commerces, une boulangerie et une boucherie-charcuterie dans les environs.
Elle est à vendre pour la somme de 324 300 €.
Prenez contact avec Kevin GRIMAUD (tél : *6-22-14-89-67) pour toute information sur la maison ou sur les démarches à suivre. Maisons Bruno Petit MJB Châteauroux vous accompagne dans tous vos projets immobiliers et à toutes les étapes de votre projet.

Mentions légales

Terrain proposé par un partenaire foncier selon disponibilités et autorisation de publicité au prix de 50 000 €. Hors droit d'enregistrement et frais de notaire. Terrain + Maison proposés au prix de 274 300 € (Hors branchements et raccordements, papiers peints, peintures, revêtement de sol dans les chambres. Tarif modifiable sans préavis). Etiquette énergie : A. Différents modèles disponibles pour ce terrain. Assurances et garanties du constructeur (RC professionnelle, décennale, dommage ouvrage, garantie de remboursement de l'acompte, livraison à prix et délai convenu) : https://www.maisons-brunopetit.fr/mentions-legales/.

Contactez l'agence de Châteauroux

02 54 22 66 24

    * Champs obligatoires

    Vos informations sont traitées par HEXAOM et transmises à un conseiller commercial qui vous contactera afin de répondre à votre demande. Les plans et images présentés sur notre site sont la propriété d’HEXAOM et ne peuvent pas être reproduits sans son accord. Pour retrouver notre politique de protection des données personnelles et exercer vos droits conformément à la « loi informatique et liberté » cliquez-ici.