Maison neuve à
Sainte-Feyre (23000) Référence : KG2471403_1

Prix du projet : Maison avec Terrain

prix 148 000 €

  • 4 pièces
  • 3 chambres
  • Surface maison 85 m2

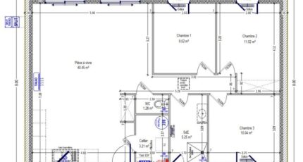
Projet de construction d'une maison T4 (85 m²) à Sainte-Feyre
EMPLACEMENT PRIVILÉGIÉ - MAISON 4 PIÈCES NEUVE
À vendre : nous sommes ravis de vous présenter cette maison de 4 pièces de plain-pied de 85 m², bénéficiant d'un emplacement d'exception dans Sainte-Feyre (23000).
Conçue de plain-pied, elle comporte trois chambres, une cuisine et une salle de bains. La maison est neuve.
Le terrain du bien s'étend sur 1 072 m².
Cette maison est située dans un quartier attractif. Des écoles primaires se trouvent à moins de 10 minutes à pied, tout comme, comme l'École Elementaire Henri Goumy. Niveau transports en commun, il y a les gares Guéret et Busseau sur Creuse à moins de 10 minutes en voiture. On trouve un accès à la nationale N145 à 5 km. On trouve trois commerces, une boucherie-charcuterie et un bureau de poste dans les environs.
Son prix de vente est de 148 000 €.
Prenez contact avec notre agence (GRIMAUD Kevin : *6-22-14-89-67) pour toute information sur la maison. Maisons Bruno Petit MJB Châteauroux est là pour vous accompagner dans toutes vos démarches.

Mentions légales

Terrain proposé par un partenaire foncier selon disponibilités et autorisation de publicité au prix de 19 500 €. Hors droit d'enregistrement et frais de notaire. Terrain + Maison proposés au prix de 148 000 € (Hors branchements et raccordements, papiers peints, peintures, revêtement de sol dans les chambres. Tarif modifiable sans préavis). Etiquette énergie : A. Différents modèles disponibles pour ce terrain. Assurances et garanties du constructeur (RC professionnelle, décennale, dommage ouvrage, garantie de remboursement de l'acompte, livraison à prix et délai convenu) : https://www.maisons-brunopetit.fr/mentions-legales/.

Contactez l'agence de Châteauroux

02 54 22 66 24

    * Champs obligatoires

    Vos informations sont traitées par HEXAOM et transmises à un conseiller commercial qui vous contactera afin de répondre à votre demande. Les plans et images présentés sur notre site sont la propriété d’HEXAOM et ne peuvent pas être reproduits sans son accord. Pour retrouver notre politique de protection des données personnelles et exercer vos droits conformément à la « loi informatique et liberté » cliquez-ici.