Maison neuve à
Sainte-Feyre (23000) Référence : KG2471403_2

Prix du projet : Maison avec Terrain

prix 165 500 €

  • 4 pièces
  • 3 chambres
  • Surface maison 85 m2

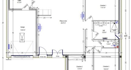
Sainte-Feyre : Projet de construction maison de 4 pièces (85 m²)
EMPLACEMENT PRIVILÉGIÉ - MAISON 4 PIÈCES NEUVE
En vente : ayez le coup de coeur pour, bénéficiant d'un emplacement privilégié dans Sainte-Feyre (23000), cette maison de 4 pièces de plain-pied de 85 m² et de 1 072 m² de terrain. Elle propose trois chambres, une cuisine et une salle de bains.
La maison est neuve.
La maison se trouve dans un secteur prisé. Il y a des écoles maternelles et élémentaires à moins de 10 minutes à pied et dont l'École Elementaire Henri Goumy. Niveau transports en commun, on trouve deux gares (Guéret et Busseau sur Creuse) à moins de 10 minutes en voiture. La nationale N145 est accessible à 5 km. Il y a trois commerces, une boucherie-charcuterie et un bureau de poste à proximité du bien.
Son prix de vente est de 165 500 €.
N'hésitez pas à prendre contact avec Kevin GRIMAUD (tél : *6-22-14-89-67) pour toute question sur la maison, sur les modalités de vente ou sur les démarches à suivre. Maisons Bruno Petit MJB Châteauroux vous accompagne à toutes les étapes de votre projet et dans tous vos projets immobiliers.

Mentions légales

Terrain proposé par un partenaire foncier selon disponibilités et autorisation de publicité au prix de 19 500 €. Hors droit d'enregistrement et frais de notaire. Terrain + Maison proposés au prix de 165 500 € (Hors branchements et raccordements, papiers peints, peintures, revêtement de sol dans les chambres. Tarif modifiable sans préavis). Etiquette énergie : A. Différents modèles disponibles pour ce terrain. Assurances et garanties du constructeur (RC professionnelle, décennale, dommage ouvrage, garantie de remboursement de l'acompte, livraison à prix et délai convenu) : https://www.maisons-brunopetit.fr/mentions-legales/.

Contactez l'agence de Châteauroux

02 54 22 66 24

    * Champs obligatoires

    Vos informations sont traitées par HEXAOM et transmises à un conseiller commercial qui vous contactera afin de répondre à votre demande. Les plans et images présentés sur notre site sont la propriété d’HEXAOM et ne peuvent pas être reproduits sans son accord. Pour retrouver notre politique de protection des données personnelles et exercer vos droits conformément à la « loi informatique et liberté » cliquez-ici.