Maison neuve à
Sainte-Gemme
(36500) Référence :
KG2294940_8
Prix du projet : Maison avec Terrain
prix 276 500 €
- 6 pièces
- 4 chambres
- Surface maison 120 m2
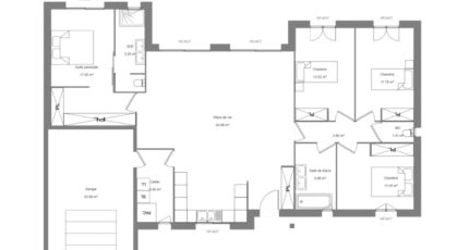
VENTE : maison T6 (120 m²) à Sainte-Gemme
IDÉALEMENT SITUÉE - MAISON 6 PIÈCES NEUVE
À deux pas de Châteauroux, nous vous proposons cette maison de 6 pièces de plain-pied de 120 m² et de 1 952 m² de terrain idéalement située dans Sainte-Gemme (36500). Son intérieur est composé de quatre chambres, d'une cuisine et de deux salles de bains.
Cette maison est neuve.
La propriété se situe dans un secteur prisé. On trouve un commerce à quelques minutes.
Elle est proposée à l'achat pour 276 500 €.
Contactez Kevin GRIMAUD (tél : 06-22-14-89-67) pour obtenir de plus amples renseignements sur la maison. Maisons Bruno Petit MJB Châteauroux vous accompagne dans tous vos projets immobiliers et à toutes les étapes de votre projet.
Mentions légales
Terrain proposé par un partenaire foncier selon disponibilités et autorisation de publicité au prix de 21 500 €. Hors droit d'enregistrement et frais de notaire. Maison proposée, avec un contrat de construction de maison individuelle, dans le cadre de la loi du 19/12/1990, au prix de 255 000 € (Hors branchements et raccordements, papiers peints, peintures, revêtement de sol dans les chambres, qui sont chiffrés dans les travaux qui restent à charge du client. Tarif modifiable sans préavis). Étiquette énergie : A. Différents modèles disponibles pour ce terrain. Assurances et garanties du constructeur comprises (RC professionnelle, décennale, dommage ouvrage).Agence Bruno Petit MJB de Châteauroux (36000)
- Téléphone :
- 02 54 22 66 24
- Adressse :
- 360 avenue de la Châtre
36000 Châteauroux, France