Maison neuve à
Sainte-Gemme (36500) Référence : KG2346058_8

Prix du projet : Maison avec Terrain

prix 365 260 €

  • 6 pièces
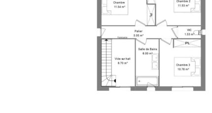
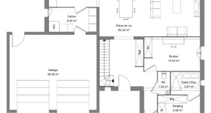
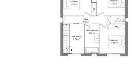
  • 5 chambres
  • Surface maison 140 m2

VENTE : maison F6 (140 m²) à Sainte-Gemme
EMPLACEMENT PRIVILÉGIÉ - MAISON 6 PIÈCES NEUVE
À 28 km de Châteauroux, en vente bénéficiant d'un emplacement d'exception dans Sainte-Gemme (36500), nous vous présentons cette maison de 6 pièces de 140 m². Son intérieur inclut cinq chambres, une cuisine et deux salles de bains.
Le terrain de cette maison est de 1 076 m².
Il s'agit d'une maison de 2 niveaux. Elle est neuve.
Cette maison est située dans un secteur convoité. On trouve un commerce à proximité.
Elle est proposée à l'achat pour 365 260 €.
Prenez contact avec notre agence (GRIMAUD Kevin : *6-22-14-89-67) pour toute information sur la propriété et sur les modalités de vente.

Mentions légales

Terrain proposé par un partenaire foncier selon disponibilités et autorisation de publicité au prix de 14 660 €. Hors droit d'enregistrement et frais de notaire. Terrain + Maison proposés au prix de 350 600 € (Hors branchements et raccordements, papiers peints, peintures, revêtement de sol dans les chambres. Tarif modifiable sans préavis). Etiquette énergie : A. Différents modèles disponibles pour ce terrain. Assurances et garanties du constructeur (RC professionnelle, décennale, dommage ouvrage, garantie de remboursement de l'acompte, livraison à prix et délai convenu) : https://www.maisons-brunopetit.fr/mentions-legales/.

Contactez l'agence de Châteauroux

02 54 22 66 24

    * Champs obligatoires

    Vos informations sont traitées par HEXAOM et transmises à un conseiller commercial qui vous contactera afin de répondre à votre demande. Les plans et images présentés sur notre site sont la propriété d’HEXAOM et ne peuvent pas être reproduits sans son accord. Pour retrouver notre politique de protection des données personnelles et exercer vos droits conformément à la « loi informatique et liberté » cliquez-ici.