Maison neuve à
Sainte-Solange (18220) Référence : SG2401096_3

Prix du projet : Maison avec Terrain

prix 165 600 €

  • 4 pièces
  • 3 chambres
  • Surface maison 85 m2

VENTE d'une maison de 4 pièces (85 m²) à Sainte-Solange
IDÉALEMENT SITUÉE - MAISON 4 PIÈCES NEUVE
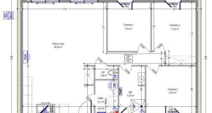
En vente : localisée à deux pas de Bourges, idéalement située dans Sainte-Solange (18220), nous vous proposons cette maison de 4 pièces de plain-pied de 85 m² et de 810 m² de terrain. Son intérieur est composé de trois chambres, d'une cuisine et d'une salle de bains.
La maison est neuve.
Cette maison est située dans un quartier recherché. L'École Primaire la Carmerie est implantée à moins de 10 minutes à pied. Niveau transports en commun, il y a la gare Saint-Germain-du-Puy à moins de 10 minutes en voiture. L'autoroute A71 et les nationales N142 et N151 sont accessibles à moins de 19 km. On trouve un tennis, une boulangerie et une boucherie-charcuterie à proximité.
Elle est à vendre pour la somme de 165 600 €.
N'hésitez pas à prendre contact avec notre agence (GROGRELIN Sandra : *2-48-50-26-25) pour toute information sur la propriété, sur les démarches à suivre ou sur les modalités de vente.

Mentions légales

Terrain proposé par un partenaire foncier selon disponibilités et autorisation de publicité au prix de 35 000 €. Hors droit d'enregistrement et frais de notaire. Terrain + Maison proposés au prix de 130 600 € (Hors branchements et raccordements, papiers peints, peintures, revêtement de sol dans les chambres. Tarif modifiable sans préavis). Etiquette énergie : A. Différents modèles disponibles pour ce terrain. Assurances et garanties du constructeur (RC professionnelle, décennale, dommage ouvrage, garantie de remboursement de l'acompte, livraison à prix et délai convenu) : https://www.maisons-brunopetit.fr/mentions-legales/.

Contactez l'agence de Bourges

02 48 50 26 25

    * Champs obligatoires

    Vos informations sont traitées par HEXAOM et transmises à un conseiller commercial qui vous contactera afin de répondre à votre demande. Les plans et images présentés sur notre site sont la propriété d’HEXAOM et ne peuvent pas être reproduits sans son accord. Pour retrouver notre politique de protection des données personnelles et exercer vos droits conformément à la « loi informatique et liberté » cliquez-ici.