Maison neuve à
Sainte-Solange (18220) Référence : SG2401124_2

Prix du projet : Maison avec Terrain

prix 165 900 €

  • 3 pièces
  • 2 chambres
  • Surface maison 70 m2

Sainte-Solange : maison F3 (70 m²) à vendre
IDÉALEMENT SITUÉE - MAISON 3 PIÈCES NEUVE
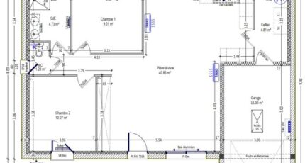
À vendre à deux pas de Bourges, idéalement située dans Sainte-Solange (18220), nous sommes heureux de vous présenter cette maison de 3 pièces de plain-pied de 70 m². Conçue de plain-pied, elle inclut deux chambres, une cuisine et une salle de bains.
Le terrain de la propriété s'étend sur 948 m².
La maison est neuve.
Cette maison est située dans un secteur attractif. L'École Primaire la Carmerie est implantée à moins de 10 minutes à pied. Côté transports, on trouve la gare Saint-Germain-du-Puy à moins de 10 minutes en voiture. L'autoroute A71 et les nationales N142 et N151 sont accessibles à moins de 19 km. Il y a un tennis, une boulangerie et une boucherie-charcuterie dans les environs.
Son prix de vente est de 165 900 €.
N'hésitez pas à prendre contact avec Sandra GROGRELIN (*2-48-50-26-25) pour obtenir de plus amples renseignements sur la maison ou sur les modalités de vente. Maisons Bruno Petit MJB Bourges est là pour vous accompagner dans tous vos projets immobiliers.

Mentions légales

Terrain proposé par un partenaire foncier selon disponibilités et autorisation de publicité au prix de 35 000 €. Hors droit d'enregistrement et frais de notaire. Terrain + Maison proposés au prix de 130 900 € (Hors branchements et raccordements, papiers peints, peintures, revêtement de sol dans les chambres. Tarif modifiable sans préavis). Etiquette énergie : A. Différents modèles disponibles pour ce terrain. Assurances et garanties du constructeur (RC professionnelle, décennale, dommage ouvrage, garantie de remboursement de l'acompte, livraison à prix et délai convenu) : https://www.maisons-brunopetit.fr/mentions-legales/.

Contactez l'agence de Bourges

02 48 50 26 25

    * Champs obligatoires

    Vos informations sont traitées par HEXAOM et transmises à un conseiller commercial qui vous contactera afin de répondre à votre demande. Les plans et images présentés sur notre site sont la propriété d’HEXAOM et ne peuvent pas être reproduits sans son accord. Pour retrouver notre politique de protection des données personnelles et exercer vos droits conformément à la « loi informatique et liberté » cliquez-ici.