Maison neuve à
Sainte-Solange (18220) Référence : SG2401160_1

Prix du projet : Maison avec Terrain

prix 145 500 €

  • 4 pièces
  • 2 chambres
  • Surface maison 60 m2

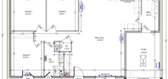
Maison F4 (60 m²) en vente à Sainte-Solange
IDÉALEMENT SITUÉE - MAISON 4 PIÈCES NEUVE
À quelques kilomètres de Bourges, Maisons Bruno Petit MJB Bourges vous propose cette maison de 4 pièces de plain-pied de 60 m² et de 863 m² de terrain idéalement située dans Sainte-Solange (18220).
Elle offre deux chambres, une cuisine et une salle de bains. La maison est neuve.
Cette maison est située dans un quartier prisé. Il y a l'École Primaire la Carmerie à moins de 10 minutes à pied. Niveau transports, on trouve la gare Saint-Germain-du-Puy à moins de 10 minutes en voiture. L'autoroute A71 et les nationales N142 et N151 sont accessibles à moins de 19 km. Il y a un tennis, une boulangerie et une boucherie-charcuterie dans les environs.
Elle est proposée à l'achat pour 145 500 €.
Contactez Sandra GROGRELIN (*2-48-50-26-25) pour obtenir de plus amples renseignements sur la maison, sur les modalités de vente ou sur les démarches à suivre.

Mentions légales

Terrain proposé par un partenaire foncier selon disponibilités et autorisation de publicité au prix de 36 000 €. Hors droit d'enregistrement et frais de notaire. Terrain + Maison proposés au prix de 109 500 € (Hors branchements et raccordements, papiers peints, peintures, revêtement de sol dans les chambres. Tarif modifiable sans préavis). Etiquette énergie : A. Différents modèles disponibles pour ce terrain. Assurances et garanties du constructeur (RC professionnelle, décennale, dommage ouvrage, garantie de remboursement de l'acompte, livraison à prix et délai convenu) : https://www.maisons-brunopetit.fr/mentions-legales/.

Contactez l'agence de Bourges

02 48 50 26 25

    * Champs obligatoires

    Vos informations sont traitées par HEXAOM et transmises à un conseiller commercial qui vous contactera afin de répondre à votre demande. Les plans et images présentés sur notre site sont la propriété d’HEXAOM et ne peuvent pas être reproduits sans son accord. Pour retrouver notre politique de protection des données personnelles et exercer vos droits conformément à la « loi informatique et liberté » cliquez-ici.