Maison neuve à
Sainte-Solange (18220) Référence : SG2402162_3

Prix du projet : Maison avec Terrain

prix 167 600 €

  • 4 pièces
  • 3 chambres
  • Surface maison 85 m2

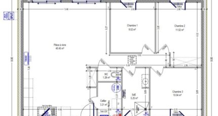
VENTE : maison de 4 pièces (85 m²) à Sainte-Solange
IDÉALEMENT SITUÉE - MAISON 4 PIÈCES NEUVE
À 14 km de Bourges, nous vous proposons cette maison de 4 pièces de plain-pied de 85 m² idéalement située dans Sainte-Solange (18220).
Elle dispose de trois chambres, d'une cuisine et d'une salle de bains. La maison est neuve.
Le terrain de la propriété est de 1 134 m².
Cette maison se trouve dans un quartier recherché. L'École Primaire la Carmerie est implantée à moins de 10 minutes à pied. Niveau transports, on trouve la gare Saint-Germain-du-Puy à moins de 10 minutes en voiture. L'autoroute A71 et les nationales N142 et N151 sont accessibles à moins de 19 km. Il y a un tennis, une boulangerie et une boucherie-charcuterie dans les environs.
Elle est proposée à l'achat pour 167 600 €.
Contactez Sandra GROGRELIN (*2-48-50-26-25) pour plus de renseignements sur la maison, sur les modalités de vente et sur les démarches à suivre.

Mentions légales

Terrain proposé par un partenaire foncier selon disponibilités et autorisation de publicité au prix de 37 000 €. Hors droit d'enregistrement et frais de notaire. Terrain + Maison proposés au prix de 130 600 € (Hors branchements et raccordements, papiers peints, peintures, revêtement de sol dans les chambres. Tarif modifiable sans préavis). Etiquette énergie : A. Différents modèles disponibles pour ce terrain. Assurances et garanties du constructeur (RC professionnelle, décennale, dommage ouvrage, garantie de remboursement de l'acompte, livraison à prix et délai convenu) : https://www.maisons-brunopetit.fr/mentions-legales/.

Contactez l'agence de Bourges

02 48 50 26 25

    * Champs obligatoires

    Vos informations sont traitées par HEXAOM et transmises à un conseiller commercial qui vous contactera afin de répondre à votre demande. Les plans et images présentés sur notre site sont la propriété d’HEXAOM et ne peuvent pas être reproduits sans son accord. Pour retrouver notre politique de protection des données personnelles et exercer vos droits conformément à la « loi informatique et liberté » cliquez-ici.