Maison neuve à
Sainte-Solange (18220) Référence : SG2402408_2

Prix du projet : Maison avec Terrain

prix 175 900 €

  • 3 pièces
  • 2 chambres
  • Surface maison 70 m2

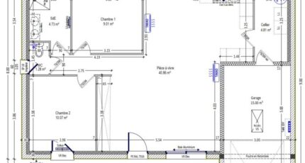
Maison de 3 pièces (70 m²) en vente à Sainte-Solange
IDÉALEMENT SITUÉE - MAISON 3 PIÈCES NEUVE
À vendre : à quelques kilomètres de Bourges, idéalement située dans Sainte-Solange (18220), nous vous proposons cette maison de 3 pièces de plain-pied de 70 m² et de 2 095 m² de terrain.
Conçue de plain-pied, elle comporte deux chambres, une cuisine et une salle de bains. La maison est neuve.
Cette maison est située dans un quartier convoité. On trouve l'École Primaire la Carmerie à moins de 10 minutes à pied. Niveau transports, il y a la gare Saint-Germain-du-Puy à moins de 10 minutes en voiture. L'autoroute A71 et les nationales N142 et N151 sont accessibles à moins de 19 km. On trouve un tennis, une boulangerie et une boucherie-charcuterie dans les environs.
Elle est proposée à l'achat pour 175 900 €.
Contactez Sandra GROGRELIN (*2-48-50-26-25) pour plus d'informations sur la maison, sur les démarches à suivre ou sur les modalités de vente. Maisons Bruno Petit MJB Bourges est là pour vous accompagner à toutes les étapes de votre projet.

Mentions légales

Terrain proposé par un partenaire foncier selon disponibilités et autorisation de publicité au prix de 45 000 €. Hors droit d'enregistrement et frais de notaire. Terrain + Maison proposés au prix de 130 900 € (Hors branchements et raccordements, papiers peints, peintures, revêtement de sol dans les chambres. Tarif modifiable sans préavis). Etiquette énergie : A. Différents modèles disponibles pour ce terrain. Assurances et garanties du constructeur (RC professionnelle, décennale, dommage ouvrage, garantie de remboursement de l'acompte, livraison à prix et délai convenu) : https://www.maisons-brunopetit.fr/mentions-legales/.

Contactez l'agence de Bourges

02 48 50 26 25

    * Champs obligatoires

    Vos informations sont traitées par HEXAOM et transmises à un conseiller commercial qui vous contactera afin de répondre à votre demande. Les plans et images présentés sur notre site sont la propriété d’HEXAOM et ne peuvent pas être reproduits sans son accord. Pour retrouver notre politique de protection des données personnelles et exercer vos droits conformément à la « loi informatique et liberté » cliquez-ici.