Maison neuve à
Sainte-Solange (18220) Référence : SG2402408_4

Prix du projet : Maison avec Terrain

prix 189 100 €

  • 4 pièces
  • 3 chambres
  • Surface maison 85 m2

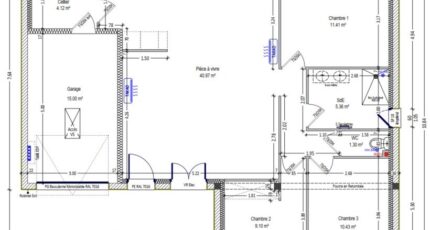
VENTE : maison de 4 pièces (85 m²) à Sainte-Solange
IDÉALEMENT SITUÉE - MAISON 4 PIÈCES NEUVE
En vente à quelques kilomètres de Bourges, nous vous proposons cette maison de 4 pièces de plain-pied de 85 m² et de 2 095 m² de terrain idéalement située dans Sainte-Solange (18220). Elle propose trois chambres, une cuisine et une salle de bains.
La maison est neuve.
La maison se trouve dans un secteur prisé. Il y a l'École Primaire la Carmerie à moins de 10 minutes à pied. Niveau transports en commun, on trouve la gare Saint-Germain-du-Puy à moins de 10 minutes en voiture. L'autoroute A71 et les nationales N142 et N151 sont accessibles à moins de 19 km. Il y a un tennis, une boulangerie et une boucherie-charcuterie à quelques minutes du bien.
Son prix de vente est de 189 100 €.
Contactez notre agence (Sandra GROGRELIN : *2-48-50-26-25) pour toute information sur le bien, sur les modalités de vente ou sur les démarches à suivre. Maisons Bruno Petit MJB Bourges est là pour vous accompagner dans tous vos projets immobiliers.

Mentions légales

Terrain proposé par un partenaire foncier selon disponibilités et autorisation de publicité au prix de 45 000 €. Hors droit d'enregistrement et frais de notaire. Terrain + Maison proposés au prix de 144 100 € (Hors branchements et raccordements, papiers peints, peintures, revêtement de sol dans les chambres. Tarif modifiable sans préavis). Etiquette énergie : A. Différents modèles disponibles pour ce terrain. Assurances et garanties du constructeur (RC professionnelle, décennale, dommage ouvrage, garantie de remboursement de l'acompte, livraison à prix et délai convenu) : https://www.maisons-brunopetit.fr/mentions-legales/.

Contactez l'agence de Bourges

02 48 50 26 25

    * Champs obligatoires

    Vos informations sont traitées par HEXAOM et transmises à un conseiller commercial qui vous contactera afin de répondre à votre demande. Les plans et images présentés sur notre site sont la propriété d’HEXAOM et ne peuvent pas être reproduits sans son accord. Pour retrouver notre politique de protection des données personnelles et exercer vos droits conformément à la « loi informatique et liberté » cliquez-ici.