Maison neuve à
Sainte-Solange (18220) Référence : SG2402408_9

Prix du projet : Maison avec Terrain

prix 327 000 €

  • 4 pièces
  • 3 chambres
  • Surface maison 120 m2

VENTE : maison de 4 pièces (120 m²) à Sainte-Solange
IDÉALEMENT SITUÉE - MAISON 4 PIÈCES NEUVE
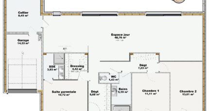
À vendre à deux pas de Bourges, idéalement située dans Sainte-Solange (18220), nous sommes heureux de vous présenter cette maison de 4 pièces de plain-pied de 120 m² et de 2 095 m² de terrain. Elle inclut trois chambres, une cuisine et deux salles de bains.
La maison est neuve.
Cette maison est située dans un secteur attractif. Il y a l'École Primaire la Carmerie à moins de 10 minutes à pied. Niveau transports en commun, on trouve la gare Saint-Germain-du-Puy à moins de 10 minutes en voiture. L'autoroute A71 et les nationales N142 et N151 sont accessibles à moins de 19 km. Il y a un tennis, une boulangerie et une boucherie-charcuterie à proximité du logement.
Elle est à vendre pour la somme de 327 000 €.
Contactez notre agence (GROGRELIN Sandra : *2-48-50-26-25) pour tout renseignement sur la propriété ou sur les modalités de vente. Maisons Bruno Petit MJB Bourges vous accompagne dans tous vos projets immobiliers et dans toutes vos démarches.

Mentions légales

Terrain proposé par un partenaire foncier selon disponibilités et autorisation de publicité au prix de 45 000 €. Hors droit d'enregistrement et frais de notaire. Terrain + Maison proposés au prix de 282 000 € (Hors branchements et raccordements, papiers peints, peintures, revêtement de sol dans les chambres. Tarif modifiable sans préavis). Etiquette énergie : A. Différents modèles disponibles pour ce terrain. Assurances et garanties du constructeur (RC professionnelle, décennale, dommage ouvrage, garantie de remboursement de l'acompte, livraison à prix et délai convenu) : https://www.maisons-brunopetit.fr/mentions-legales/.

Contactez l'agence de Bourges

02 48 50 26 25

    * Champs obligatoires

    Vos informations sont traitées par HEXAOM et transmises à un conseiller commercial qui vous contactera afin de répondre à votre demande. Les plans et images présentés sur notre site sont la propriété d’HEXAOM et ne peuvent pas être reproduits sans son accord. Pour retrouver notre politique de protection des données personnelles et exercer vos droits conformément à la « loi informatique et liberté » cliquez-ici.