Maison neuve à
Tendu (36200) Référence : FR2298875_10

Prix du projet : Maison avec Terrain

prix 215 400 €

  • 3 pièces
  • 2 chambres
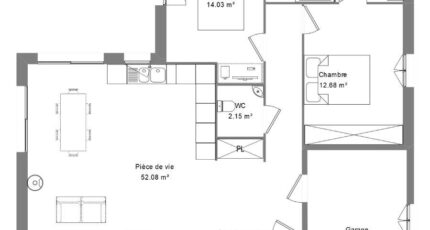
  • Surface maison 100 m2

VENTE : maison de 3 pièces (100 m²) à Tendu
IDÉALEMENT SITUÉE - MAISON 3 PIÈCES NEUVE
En vente : à 19 km de Châteauroux, nous sommes ravis de vous proposer, idéalement située dans Tendu (36200), cette maison de 3 pièces de plain-pied de 100 m² et de 1 350 m² de terrain.
Son intérieur compte deux chambres, une cuisine et deux salles de bains. Cette maison est neuve.
La maison se situe dans un secteur recherché. On y trouve une école élémentaire. Niveau transports, on trouve trois gares (Chabenet, Lothiers et Argenton-sur-Creuse) à moins de 10 minutes en voiture. Il y a un accès à l'autoroute A20 à 1 km.
Elle est proposée à l'achat pour 215 400 €.
Contactez Franck RUBIO (06-30-49-64-43) pour toute information sur la maison ou sur les modalités de vente. Maisons Bruno Petit MJB Châteauroux est là pour vous accompagner dans tous vos projets immobiliers.

Mentions légales

Terrain proposé par un partenaire foncier selon disponibilités et autorisation de publicité au prix de 18 000 €. Hors droit d'enregistrement et frais de notaire. Terrain + Maison proposés au prix de 197 400 € (Hors branchements et raccordements, papiers peints, peintures, revêtement de sol dans les chambres. Tarif modifiable sans préavis). Etiquette énergie : A. Différents modèles disponibles pour ce terrain. Assurances et garanties du constructeur (RC professionnelle, décennale, dommage ouvrage, garantie de remboursement de l'acompte, livraison à prix et délai convenu) : https://www.maisons-brunopetit.fr/mentions-legales/.

Contactez l'agence de Châteauroux

02 54 22 66 24

    * Champs obligatoires

    Vos informations sont traitées par HEXAOM et transmises à un conseiller commercial qui vous contactera afin de répondre à votre demande. Les plans et images présentés sur notre site sont la propriété d’HEXAOM et ne peuvent pas être reproduits sans son accord. Pour retrouver notre politique de protection des données personnelles et exercer vos droits conformément à la « loi informatique et liberté » cliquez-ici.